Продажа, коммерческих помещений, помещений для услуг: ИЗОЛА, ЛИВАДЕ, 93,4 м2
Параметры
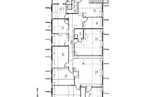
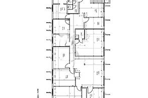
В новой жилой и коммерческой застройке в районе Ливаде в городе Изола продается готовое коммерческое помещение, предназначенное для различных видов деятельности в сфере услуг (бухгалтерский учет, торговля, агентство, адвокатура, медицина и т. д.). Помещение готово к использованию, состоит из трех офисов, помещения для архива или гардероба, санузла с ванной. Помещение имеет индивидуальный тепловой насос (охлаждение, подогрев пола). Возможность немедленного получения ключей.

Вернуться к списку
Вывести в PDF