Дом, Черныхучи
Параметры
В продаже современный просторный одноэтажный дом, находящийся в тихом и благоустроенном районе Чрнуче, Любляна. Построенный в 2011 году, дом состоит из трех уровней и имеет общую площадь в 186 м². Приватный земельный участок размером 313 м² позволяет удобно разместить несколько автомобилей.
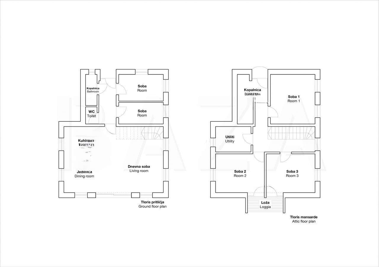
На первом этаже вы найдете прихожую, кладовую, ванную с душем, кухню со всем необходимым оборудованием, гостиную с обеденной зоной и камином — оттуда можно выйти в сад, где расположена летняя кухня, идеально подходящая для уютных встреч на свежем воздухе. Второй этаж включает в себя функциональную комнату с машиной для стирки, ещё одну ванную с душевой кабиной и санузлом, просторную главную спальню с встроенными шкафами и две детские комнаты, ведущие на балкон. Мансарда обустроена как фитнес-зал или дополнительная спальня, а также есть кладовая и зона для отдыха.
Дом полностью меблирован, находится в отличном состоянии, благодаря регулярному уходу: в 2025 году обновлены фасад и отшлифован паркет. Использованы высококачественные материалы с усовершенствованной тепловой изоляцией (18 см фасадной обкладки). Солнечная электростанция мощностью 10 кВт обеспечивает энергоэффективное и экологичное проживание.
Отопление осуществляется через теплые полы, питаемые от газового котла, а также установлена система кондиционирования воздуха. Дом имеет подключение к воде, электричеству, канализации и оптическому интернету.
Местоположение обладает развитой инфраструктурой: поблизости есть школы, детские сады, медицинские учреждения, магазины и автобусная остановка. Близость к дороге и центру города делает жилье идеальным вариантом как для семей, так и для людей старшего возраста, обеспечивая при этом низкие эксплуатационные расходы.
- Общая площадь: 186 м²
- Три уровня: первый, второй этажи и мансарда
- Три спальни
- Две ванные комнаты
- Земельный участок: 313 м²
- Балкон
- Атрий
- Несколько парковочных мест
- Терраса
- Сад
- Теплые полы
- Кондиционер
- Газовое отопление
- Полностью меблирован
- Оптический интернет
Цена: 840 000 EUR

Вернуться к списку
Вывести в PDF