Здание в Бежиграде
Параметры
Элегантный и модернизированный трёхуровневый дом площадью 509,3 м², расположенный в престижном районе Железникар в Любляне, украсит вас тишиной и уютом. На участке площадью 632 м², этот дом, обновлённый в 2022 году, предлагает три автономные жилые единицы, приносящие стабильный доход от аренды около 50 000 евро в год. Он идеально подойдёт для семейного проживания, предоставляя при этом возможность получать пассивный доход.
Сад, расположенный на территории, включает ухоженные фруктовые деревья, детскую площадку, а также отапливаемый бассейн с ограждением и автоматической системой фильтрации. Обширное пространство открытых мероприятий включает барбекю-зону, летнюю кухню и несколько крытых мест для отдыха. Парковка рассчитана на семь автомобилей.
Техническое оснащение дома создаёт уют и удобство: система отопления пола, современная система климат-контроля, воздушный рекуператор, оптоволоконный интернет, системы видеонаблюдения и инновационные окна с отличной теплоизоляцией. Непосредственная близость к Международной школе Любляны, спортивным центрам, зелёным зонам и магазинам придаёт этому месту особенное очарование. До центра Любляны можно доехать всего за пять минут.
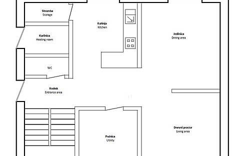
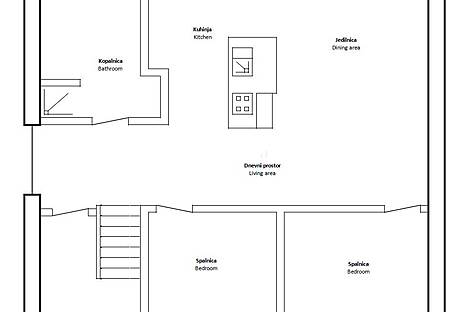
- Первый этаж: прихожая, гардеробная, гостевая ванная комната, просторная кухня с обеденной зоной, террасой и камином, а также кладовая со значительным морозильником и прачечная с установкой для стирки, сушки и душем.
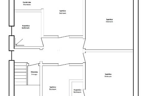
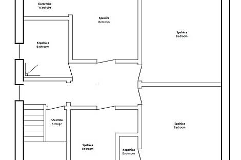
- Второй этаж: большая гостиная с кухней и обеденной зоной, четыре спальни, две ванные комнаты (одна с душем, другая с ванной).
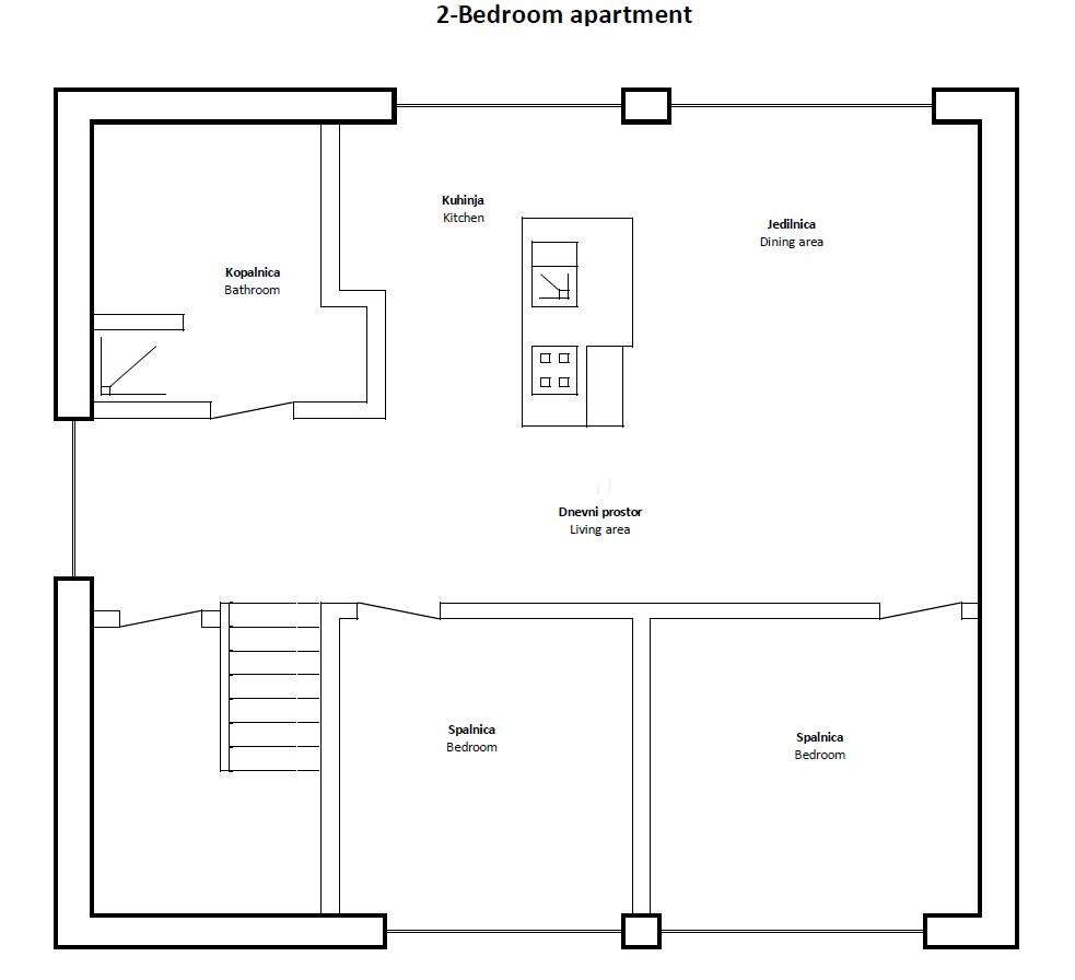
- Третий этаж: отдельная квартира (около 100 м²) с приватным входом, оборудованная кухней, тремя спальнями, просторной ванной комнатой, гостиной и столовой. Доступна для краткосрочной аренды.
- Четвёртый этаж: современная квартира (около 100 м²), с высокими потолками, двумя спальнями, ванной комнатой, просторной гостиной и совмещённой с обеденной зоной кухней. Великолепный вид с возможностью краткосрочной аренды.
Этот дом является не только комфортабельным жилищем для большой семьи, но и уникальной инвестицией на одном из самых надёжных рынков недвижимости в Центральной Европе. Объект в идеальном состоянии и готов к заселению.
Цена: 1.980.000,00 евро

Вернуться к списку
Вывести в PDF