Новое здание с террасой в Любляне, Вич.
Параметры
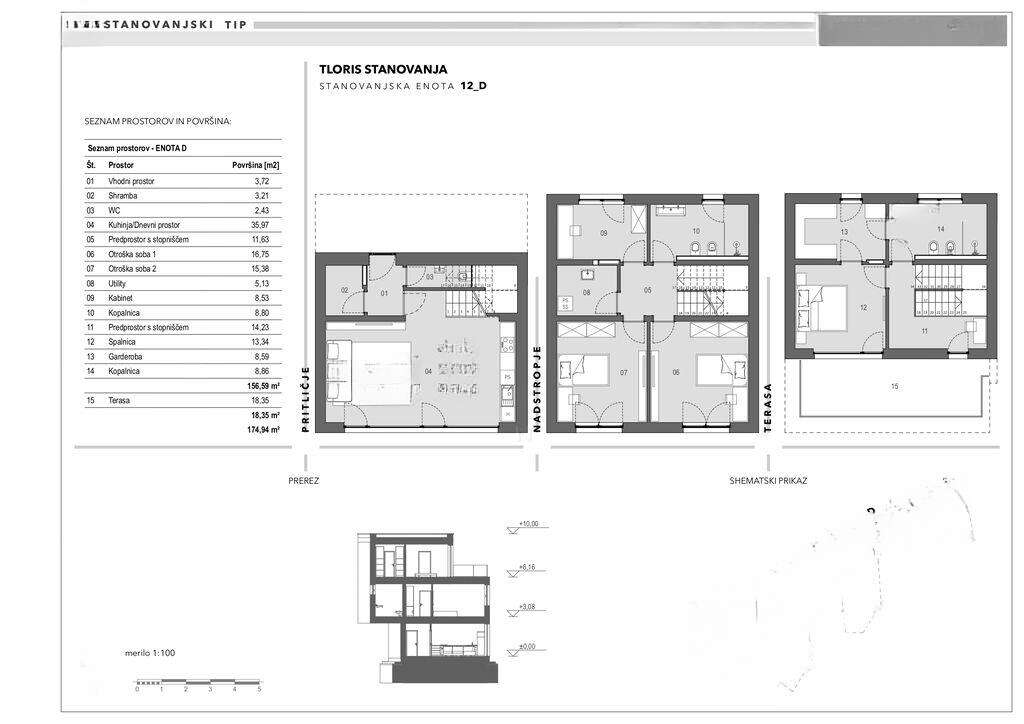
На Виче представлен новый дом с террасой, его общая площадь составляет 179,53 м². Завершенный в 2022 году, он расположен на участке площадью 154,31 м². Дом имеет в своем распоряжении подвал, первый этаж и два верхних уровня, что обеспечивает просторные условия для комфортной жизни.
Расположение в тихом районе с южной ориентацией и близостью к природе создает идеальную атмосферу для проживания. Отдельно стоит отметить большую террасу и ухоженный атриум. Использование высококачественных материалов и современные планировки придают дому особую привлекательность.
В парковой зоне нового закрытого комплекса на Виче, включающего 17 домов разной планировки, обустроены новые зеленые насаждения и детская площадка. Дом полностью готов к проживанию, завершена 3-я фаза строительства, заселение возможно сразу.
Дом оснащён следующими коммуникациями: электричество ⚡, водоснабжение, телекоммуникации , газовое отопление и предусмотрено подключение для теплового насоса.
- Общая площадь: 179,53 м²
- Конфигурация: подвал, первый этаж и два верхних уровня
- Жилая площадь: 161,18 м²
- Площадь участка: 154,31 м²
- Размер террасы: 13,53 м²
- Кухня соединена с просторной гостиной
- Две детские комнаты, кабинет и прачечная на верхних этажах
- Две ванных комнаты и дополнительный гостевой туалет
- Гардеробная и спальня на уровне террасы
- Парковка: перед домом
Дом находится в стратегически выгодном месте : быстрое сообщение с центром Любляны и основными транспортными артериями. ✅ Вся необходимая инфраструктура расположена в непосредственной близости.
Архитектурные особенности комплекса включают ж/бетонные конструкции, высококачественную термоизоляцию, энергосберегающие окна с трехслойным стеклопакетом и усовершенствованную систему безопасности.
Цена: 649 000 EUR

Вернуться к списку
Вывести в PDF