Коммерческая недвижимость в Бежиграде
Параметры
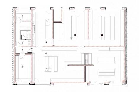
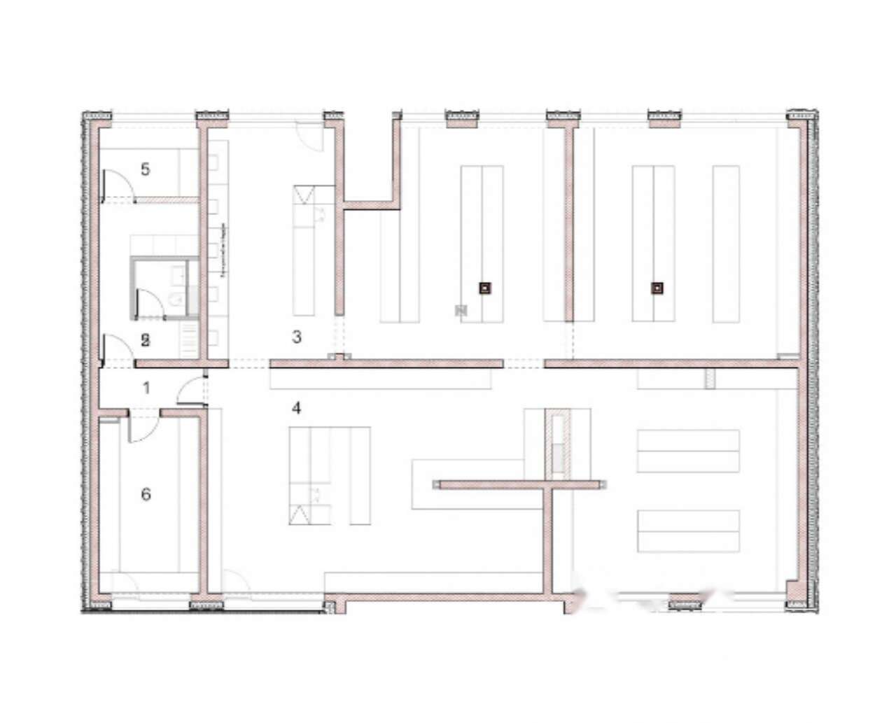
Предлагаем в продажу коммерческую недвижимость площадью 294,95 м², расположенную в новейшем жилом комплексе "Новый Бежиград". Завершение строительства планируется на 2025 год. Объект располагается на первом этаже из девяти.
Включенный в новый жилой район, который возводится на месте старой Бежиградской типографии на улице Толстого и улице Машера-Спашичевой, объект представляет собой образец современной архитектуры. Здесь акцент делается на зеленых и открытых пространствах. Просторные стеклянные фасады позволят естественному свету наполнять помещение, а виды на величавые Юлийские Альпы станут его изюминкой. Для строительства использованы прочные и экологически стойкие материалы.
Инженерная готовность объекта достигла третьего этапа, что оставляет будущее оформление на усмотрение владельцев. Удобный отдельный вход, энергосберегающая система окон и отопление, подключенное к городской теплосети, обеспечат комфорт будущим владельцам.
Объект полностью юридически оформлен, ожидается получение права собственности, а окончательная передача владельцу запланирована на лето 2028 года. Предполагаемое использование включает тихую, торговую или сервисную деятельность.
Расположенный в районе Новый Бежиград, объект выгодно использует все преимущества развитой инфраструктуры и транспортной доступности, совмещая это с преимуществами окружающей зелени.
- Площадь: 294,95 м²
- Этажность: 1/9
- Количество ванных комнат: 1
- Помещения включают: предбанник, ванную комнату, жилую зону с кухней/столовой, спальню, лоджию, кладовую
- Отопление: подключение к городской теплосети
- Архитектурные особенности: панорамные окна, террасное строительство
Инвестиционная привлекательность оценивается в 7 из 10. Благодаря современному строительству и стратегическому местоположению, объект обещает стабильную доходность и долгосрочные инвестиционные выгод.
Цена объекта составляет 808,888.00 EUR, с учетом НДС в размере 22%.

Вернуться к списку
Вывести в PDF