Четырехкомнатная квартира в Бежиграде
Параметры
На продажу выставлена четырехкомнатная квартира площадью 115,98 м² в современном жилом комплексе Новая Бежиград. Он возводится на участке бывшей бежиградской типографии, расположенной между улицами Толстого и Машера-Спашичевой в Любляне. Апартаменты находятся на втором этаже девятиэтажного здания, сдача которого в эксплуатацию ожидается летом 2028 года.
Комплекс Новая Бежиград выгодно выделяется своими зелеными, просторными и светлыми пространствами. Навесы и террасы современного дизайна обеспечивают обилие зеленых уголков даже на верхних уровнях, а внушительные стеклянные панели дарят максимум света и открывают захватывающий вид на величественные Юлийские Альпы. Для строительства используются первоклассные, долговечные материалы, рассчитанные на долгую эксплуатацию и устойчивые к внешним воздействиям.
Просторные и светлые жилые помещения в квартире создают атмосферу легкости и простора. Во многих квартирах предусмотрены хотя бы одно открытое пространство, откуда можно насладиться видами природы и гор. Зеленые насаждения комплекса обеспечивают свежий воздух и комфортный климат круглый год.
- Общая площадь: 115,98 м²
- Этаж: 2/9
- Количество спален: 1
- Количество ванных комнат: 2
- Дополнительно: кладовая
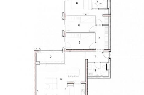
Квартира включает в себя прихожую, две ванные комнаты, просторную гостиную с кухней и столовой, кабинет, гардеробную, спальню, лоджию и кладовую.
Цена: 674 916,00 EUR

Вернуться к списку
Вывести в PDF