Центр: трёхкомнатная квартира
Параметры
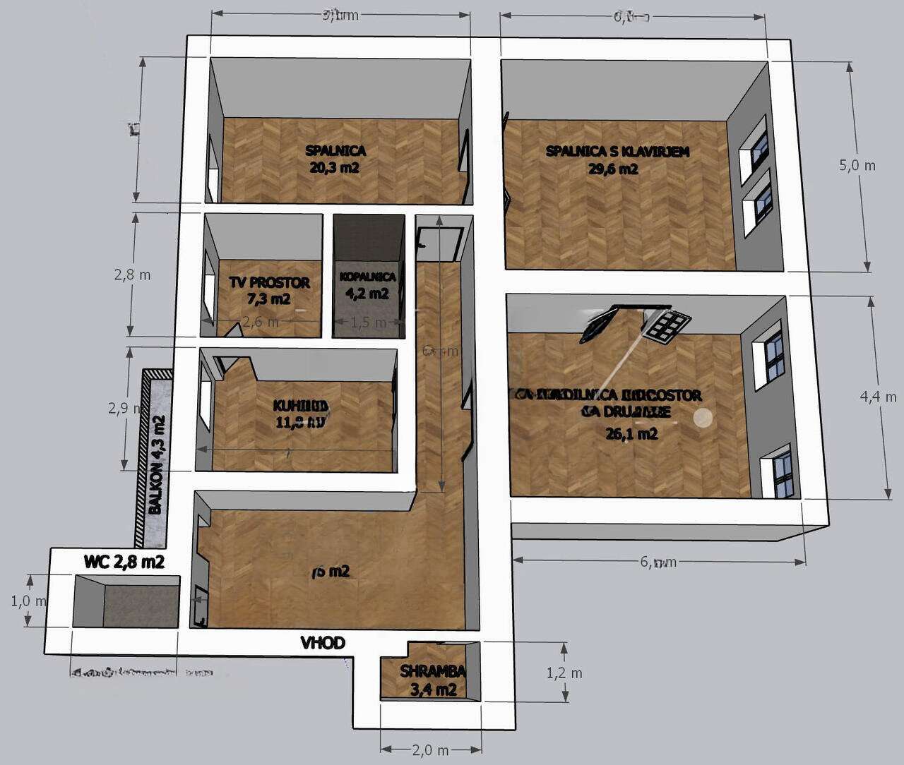
Просторная трёхкомнатная квартира площадью 157,8 м² расположена на третьем этаже дома, возведённого в 1895 году и обновлённого в 1990 году для современных нужд. Эта историческая недвижимость позволяет погрузиться в атмосферу прошлого века, находясь в центре Любляны.
Расположение квартиры удачно сочетает городской комфорт с близостью природы: всего в нескольких минутах находятся парк Вальвасор, Тиволи и знаменитый Трёхмостовой мост. В шаговой доступности — торговый центр "Макси Маркет".
Планировка включает:
- Просторный холл с эффектом открытого пространства;
- Кухню, объединённую с уютной гостиной и зоной, оборудованной для ТВ;
- Гостиную с видом на Национальный музей и зелёные насаждения парка;
- Просторную главную спальню с роялем;
- Дополнительную спальню для гостей или семьи;
- Раздельный санузел и ванную комнату;
- Балкон для отдыха на свежем воздухе;
Квартира включает кладовку и просторное чердачное помещение, увеличивая её функциональные возможности. Планировка позволяет трансформацию в четырёхкомнатную квартиру. Высота потолков составляет 3,1 м. Общая площадь включает жилое пространство (125,7 м²), кладовку (3,0 м²), балкон (4,1 м²), подвал (8,1 м²) и чердачное помещение (16,9 м²).
Здание находится в отличном состоянии: крыша была заменена в 2003 году, а фасад обновлён в 2005 году. Окна с тройным стеклопакетом обеспечивают отличную звуко- и теплоизоляцию. Установлено центральное отопление радиаторного типа. Проводка включает оптоволоконный интернет, электричество, водоснабжение, канализацию и газ.
В планах установка лифта для улучшения доступности здания. Парковочные места предоставляются во внутреннем дворе, в зависимости от наличия.
Стоимость: 665 000 EUR

Вернуться к списку
Вывести в PDF