Здание возле лесной опушки
Параметры
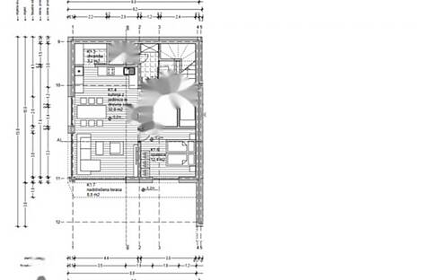
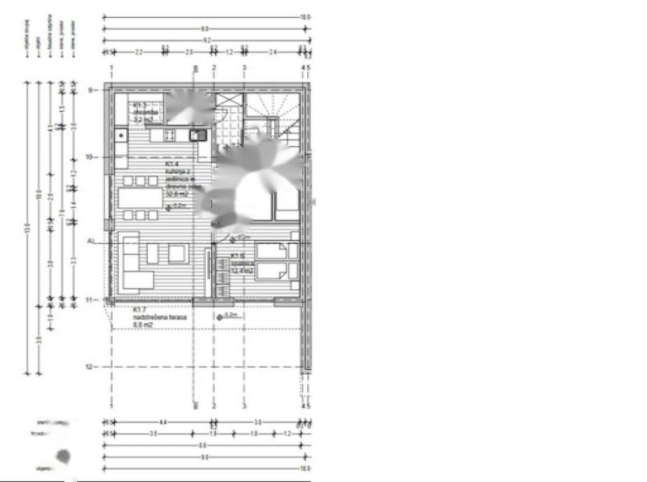
Предлагается уникальная возможность стать владельцем современного двухэтажного дома площадью 289,4 м², расположенного в живописной местности Долговы Мост, близ Люльбяны. Это идеальный вариант для ценителей природы, которые любят активный отдых и прогулки среди лесных массивов, ведь дом окружен зелёными просторами и находится всего в километре от шоссе Брезовица. Этот недавно построенный дом предоставляет возможность завершить его по своему вкусу и адаптировать интерьер в соответствии с вашими предпочтениями и образом жизни.
Среди достоинств дома — нахождение на третьей продлённой стадии строительства, открывающей широкий простор для организации жилого пространства. Современная плоская крыша и тщательно продуманные функциональные решения позволяют этому дому удовлетворять самые разнообразные требования, будь то семейное жилье, работа из дома или комфортное этажное проживание.
Дом удобно расположен с точки зрения транспорта: всего в 400 м от автобусной остановки и в 1,4 км от конечной станции LPP 6B. Ближайший магазин расположен в 1,2 км, что делает покупки простыми и быстрыми.
Технические характеристики:
- Конструкция: полузаглубленная, из железобетона
- Фундамент: железобетонная плита
- Стены и перекрытия: железобетон и кирпич
- Крыша: плоская, из железобетона
- Фасад: термоизоляция и классическая штукатурка светлого оттенка
- Окна и двери: алюминиево-ПВХ с термостатом
- Отопление и горячее водоснабжение: тепловой насос
- Вентиляция: система с рекуперацией
- Коммуникации: подключены водопровод, канализация и электросети
- Парковка: гараж на два автомобиля, плюс парковочные места перед домом
Цена: 470.000 евро

Вернуться к списку
Вывести в PDF