Изба, Луг
Параметры
Отличная возможность для покупки недвижимости в районе Любляна-Поле. Этот одноэтажный дом, построенный в 1938 году, занимает 163 квадратных метра и находится на просторном участке площадью 732 квадратных метра. Подходит как для личного проживания, так и в качестве инвестиций.
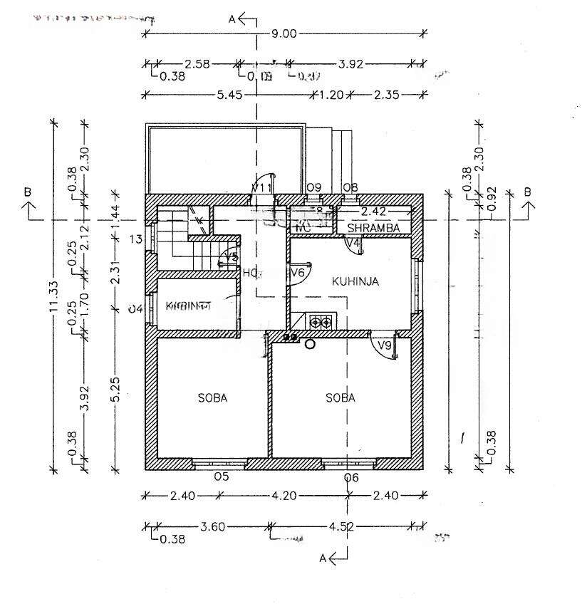
Основное строение разделено на три уровня: подвал, первый этаж и мансарда. Внутри находятся два отдельных жилых помещения с собственными входами, соединённые общей лестницей.
- Подвал: два помещения, подходящих для хранения или других целей.
- Жильё на первом этаже:
- холл
- ванная комната
- отдельный туалет
- кладовая
- кухня
- гостиная
- комната
- Жильё на втором этаже:
- холл
- санузел, совмещенный с ванной комнатой
- кладовая
- кухня
- гостиная
- спальня
К дому примыкает пристройка, в которой располагается небольшой гараж и два дополнительных помещения. Места на участке достаточно, чтобы организовать парковку нескольких автомобилей.
Дом находится в районе с развитой инфраструктурой, что обеспечивает все удобства для комфортной жизни.
- Общая площадь: 163 м²
- Уровни: подвал + первый этаж + мансарда
- Количество спален: 3
- Количество ванных: 2
- Отдельный туалет
- Кладовая
- Размер участка: 732 м²
- Парковочные места
- Отопление с радиаторами
Стоимость: 485 000 евро

Вернуться к списку
Вывести в PDF