Чрнуче, дом
Параметры
Великолепный одноуровневый дом площадью 186 м² удобно расположился в тихом и обустроенном районе Чрнуче в Любляне. Возведенное в 2011 году, это строение стоит на участке размером 313 м². Оно идеально подходит для семей, ценящих сочетание современного образа жизни и уютного комфорта, а также для пожилых людей.
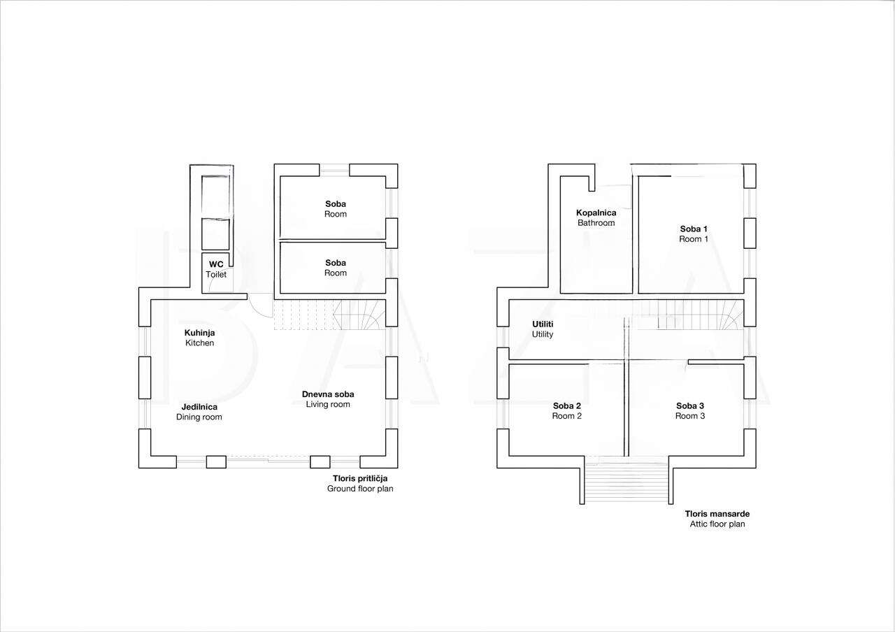
Дом включает три уровня: первый этаж, второй этаж и мансарду. На первом уровне находятся прихожая, кладовая, ванная с душевой кабинкой и туалетом, а также полностью оснащенная кухня с передовой бытовой техникой и просторная гостиная с обеденной зоной и камином. Из гостиной можно выйти в сад, где располагается летняя кухня, идеальная для отдыха на свежем воздухе. На втором этаже расположены хозяйственная комната с прачечной, вторая ванная комната и три спальни: главная спальня с встроенными шкафами и две детские спальни с выходом на балкон. Мансарда оборудована как фитнес-зал или дополнительная спальня, имеются также кладовая и комната для отдыха.
Дом продается полностью меблированным и находится в превосходном состоянии. В 2025 году была проведена реставрация фасада и обновлены паркетные полы. Превосходная энергетическая эффективность достигнута благодаря солнечной электростанции на 10 кВт и хорошей теплоизоляции. Отопление осуществляется через теплый пол при помощи газового котла, также есть кондиционер.
Районная инфраструктура радует близостью детских садов, школ, медцентров, магазинов, автобусной остановки и удобным доступом к автостраде. Благодаря этому недвижимость прекрасно подойдет семьям, ищущим светлый, современный и просторный дом в идеальном месте. На участке предусмотрено достаточно места для парковки нескольких автомобилей, а ухоженный сад обеспечивает уединение.
- Площадь: 186 м²
- Количество спален: 3
- Количество ванных комнат: 2
- Площадь участка: 313 м²
- Бассейн, Атрий, Терраса, Сад
- Теплые полы, Кондиционер
- Газовое отопление, Солнечная электростанция
- Оптоволоконный интернет
Цена: 840 000 евро

Вернуться к списку
Вывести в PDF