Жилище в Сподние Гамельне
Параметры
Этот просторный дом в два этажа, с общей площадью в 313 м², укрыт в престижном районе Споднье Гамельне и предлагает изумительные виды на Шмарну Гору. Построенный в 1972 году, он прошел модернизацию в 2023, а ухоженный участок земли, на котором он расположен, занимает 1,241 м².
Находясь всего в пяти минутах от Чрнуч, дом располагается в уютном жилом квартале. Его планировка уникальна—включает четыре уровня. На первом этаже имеется двухкомнатная квартира с ванной, спальней и обширной гостиной, оснащенной камином, а также кухней и обеденной зоной, ведущей на крытую террасу и сад. Возможность устроить отдельный вход позволяет обособить эту часть жилища.
Основной вход находится на высоком первом этаже и ведет в прихожую, где расположены две спальни с индивидуальными ванной комнатами. Между этажами доступна ванная комната, кухня со столовой, соединенная с обширной гостиной с камином и выходом на террасу.
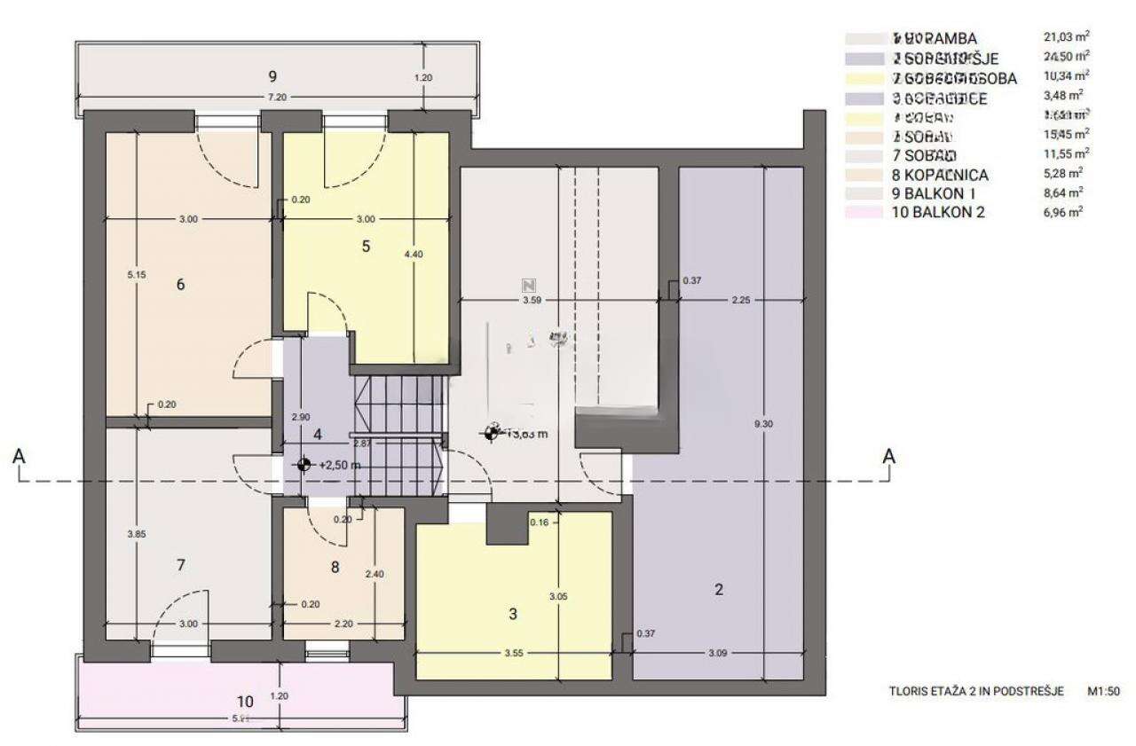
На втором этаже имеются две комнаты для молодежи с общим балконом, главная спальня также с балконом и ванная комната. Чердак оказывается просторной зоной с прачечной.
Перед домом просторна дворовая территория с навесом, рассчитанным на два автомобиля, и садовый сарай. Благодаря современным изоляционным материалам, тройным стеклопакетам, системе рециркуляции воздуха, тепловой насосной станции, солнечным панелям и центральной системе пылеудаления достигается высокая энергоэффективность, а эксплуатационные расходы составляют всего около 100 евро в месяц.
Рядом с домом пролегают маршруты прогулок к Довено, Рашице и к реке Сава, придавая этому месту дополнительное очарование. Дом, фактически завершенный и заселенный в 2013 году, показывает проявление его новизны. Для строительства еще одного дома предусмотрено место на участке с возможностью делать отдельный въезд.
- Площадь: 313 м²
- Спален: 6
- Ванных комнат: 5
- Участок: 1,241 м²
- Балкон, атриум и терраса
- Место для парковки
- Тепловой насос и кондиционер
- Энергоэффективность: B1 (15 - 25 кВтч/м²год)
- Полностью оснащен
Цена: 999,000 евро

Вернуться к списку
Вывести в PDF