2-комнатная квартира Бежиград
Параметры
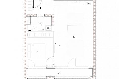
На продажу выставлена современная двухкомнатная квартира в строящемся жилом комплексе Новы Бежиград в востребованном районе Бежиград в Любляне. Апартаменты общей площадью 71,28 м² располагаются на первом из девяти уровней здания, которое планируют завершить в 2028 году.
Эта светлая и просторная квартира примечательна своей продуманной планировкой, делая её идеальным вариантом для пары или для людей, ищущих комфортное, но многофункциональное жилье. Основное жилое пространство включает просторную гостиную, совмещенную с кухней и обеденной зоной, откуда можно выйти на южную лоджию, обеспечивая при этом отличное естественное освещение.
Большие стеклянные панели на южной и западной сторонах квартиры гарантируют изобилие дневного света, создавая приятный климат в помещении. Новы Бежиград известен своей зелёной, просторной и яркой территорией благодаря внимательному отношению к природным ресурсам и созданию комфортной среды для жизни. Здание будет возведено с использованием высококачественных и устойчивых к воздействию внешней среды материалов.
Район Бежиград отличается развитой инфраструктурой и удобным расположением, что позволяет легко добраться до учебных заведений, магазинов и транспортных узлов, становясь привлекательным местом для городского образа жизни.
- Общая площадь: 71,28 м²
- Этаж: 1/9
- Количество спален: 1
- Количество ванных комнат: 1
- Лоджия: 9,40 м²
- Помещение для хранения: 5 м²
- Системы отопления: Теплый пол, Электричество, Кондиционер
- Лифт
- Парковочное место
Цена: 406,500.00 EUR

Вернуться к списку
Вывести в PDF