Квартира с двумя комнатами в центральной части Любляны
Параметры
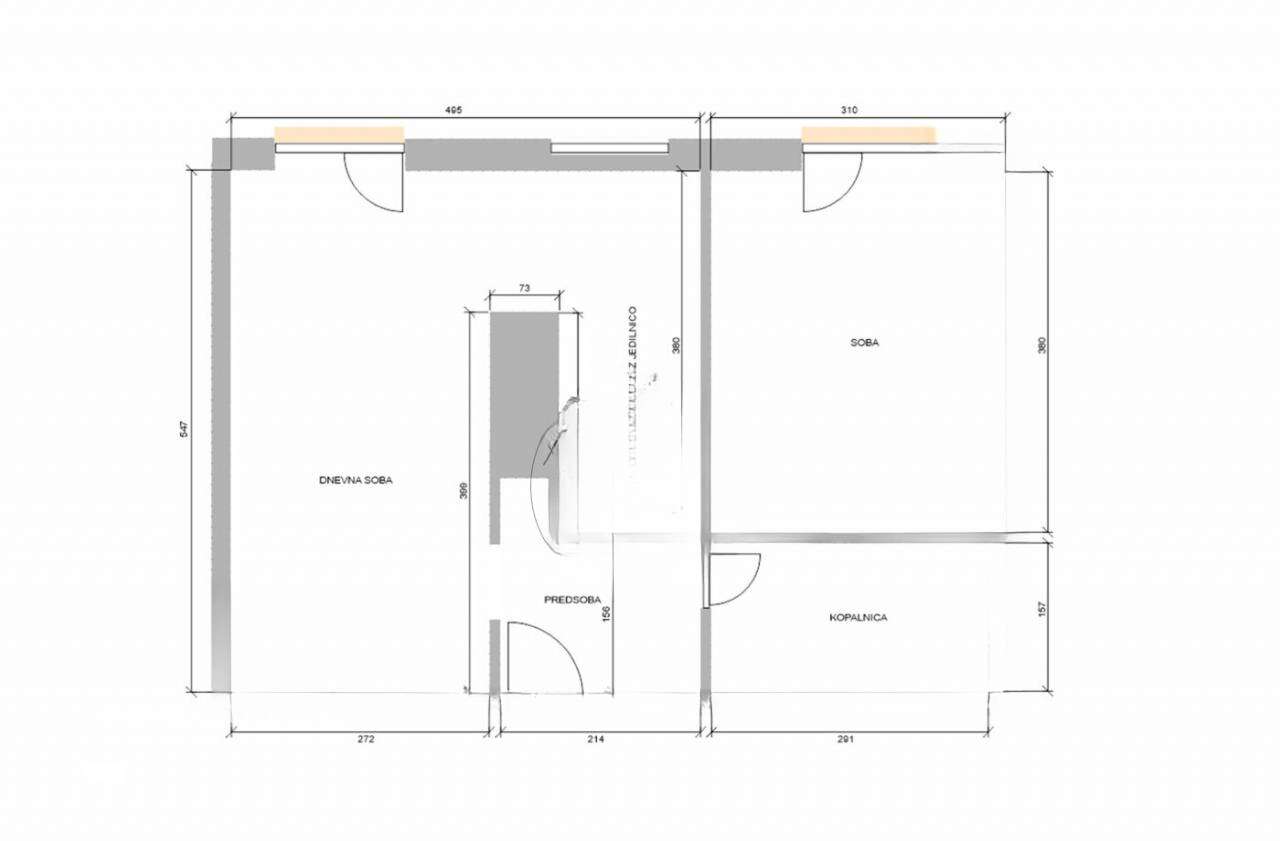
В самом сердце Любляны, в районе Табор, расположена уютная двухкомнатная квартира площадью 42 м², построенная в 1958 году и находящаяся на первом этаже. Это особое жилье находится в непосредственной близости от всех удобств города.
Благодаря отличному месторасположению вам не придется терять время в пробках. ️ Рядом есть рынок, магазины, Клинический центр, кафе и автобусная остановка. В то же время, вы можете насладиться уединением и природой, гуляя возле замкового холма с дорожками для прогулок и велосипедных поездок. Этот объект гармонично сочетает в себе городской дух и зеленую идиллию. ♂️
Светлый и просторный интерьер — одно из главных достоинств квартиры. Обилие стеклянных поверхностей обеспечивает отличное естественное освещение, а открытая планировка дарит ощущение простора и практичности. Несмотря на центральное расположение, здесь вас окружат тишина и уединение.
Планировка квартиры включает:
- Широкий коридор,
- кухню с обеденной зоной, соединенную с гостиной и выходом на французский балкон,
- спальню для комфортного отдыха,
- ванную комнату с туалетом.
Квартира нуждается в обновлении, что предоставляет возможность адаптировать её под ваши вкусы и создать пространство, отражающее вашу личность. ️
Это особенное сочетание спокойствия, обилия света и превосходной городской локации ждёт нового владельца. Энергоэффективность: класс C (35 - 60 кВтч/м² в год). Отопление осуществляется радиаторами, подключенными к тепловодному источнику. Для удобства и безопасности предусмотрен домофон.
- Цена: 268 000 EUR

Вернуться к списку
Вывести в PDF