Торговая площадь в районе Бежиград
Параметры
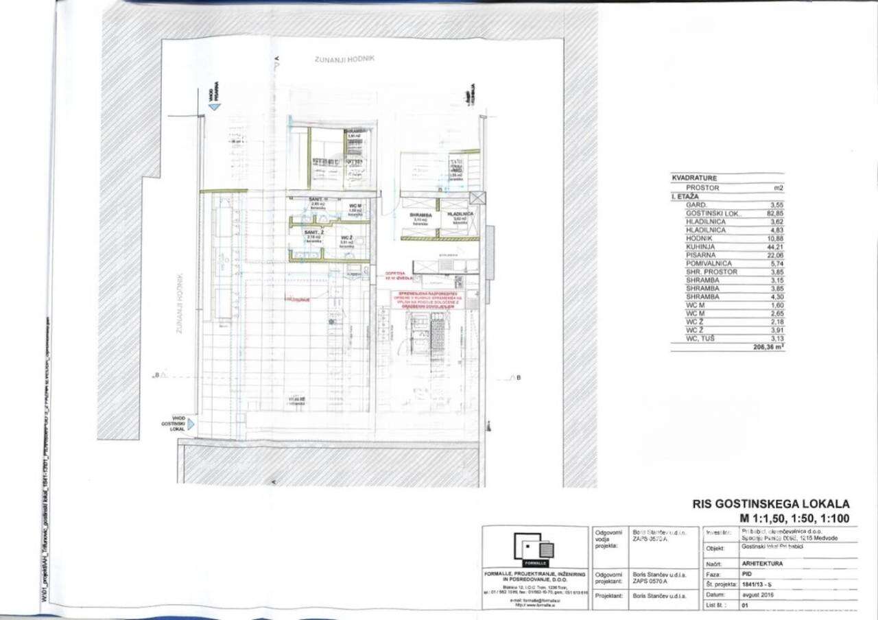
В районе Бежиград в Любляне предлагается коммерческая недвижимость площадью 213 м². Здание, возведенное в 2000 году, отлично подходит для различных коммерческих нужд, будь то торговля, услуги, офисы или выставочные залы.
Помещение расположено в аркадном комплексе коммерчески-жилого здания, которое обладает высокой видимостью и привлекает значительное количество посетителей. Это замечательное место для предпринимателей благодаря интенсивному потоку пешеходов и удобному доступу к основным транспортным магистралям города.
До объекта легко добраться как на личном транспорте, так и на общественном, так как рядом есть автобусные остановки. Кроме того, вокруг здания имеется много свободных парковочных мест.
- Объект имеет три отдельных входа, что позволяет создавать независимые зоны либо разделять пространство для клиентов и персонала.
- Рациональная планировка позволяет легко адаптировать пространство в соответствии с требованиями бизнеса.
- Расположение вблизи ключевых транспортных маршрутов с легким доступом к объездной дороге.
- Высокая плотность пешеходного трафика в аркаде и окружающем районе предлагает значительный потенциал для привлечения клиентов.
Объект полностью готов к продаже с юридической точки зрения, без каких-либо обременений, и все коммуникационные системы функционируют исправно.
Оценка инвестиционной привлекательности составляет 8 из 10. Расположение в активно развивающемся районе с сильной деловой активностью предлагает отличные перспективы для долговременного бизнеса и увеличения арендного дохода.
Стоимость объекта: 276 900 EUR + НДС (1.300 EUR/м² + НДС).

Вернуться к списку
Вывести в PDF