Рудник - дом с террасой
Параметры
Вашему вниманию представлен современный дом с террасой в престижной новостройке района Трновское предместье в Любляне. Он расположен на тихой улице с ограниченным трафиком, обеспечивая идеальное сочетание близости к центру и доступа ко всей необходимой инфраструктуре: детскому саду, магазинам, банкам, почте , ресторанам и живописным маршрутам вдоль реки Любляницы. К тому же, здесь обеспечен удобный выезд на кольцевую дорогу и к торговому центру Рудник.
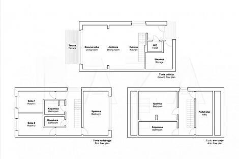
Этот трехэтажный дом включает первый и второй этажи, а также мансарду, имея общую площадь 213,00 м² с жилым пространством в 145,20 м². На прилегающем участке площадью 144,40 м² располагаются два личных парковочных места и терраса размером 8,00 м².
На первом этаже вы найдете: прихожую, кладовую/техническое помещение, отдельно расположенный туалет, а также просторную гостиную, объединенную с кухней и столовой. Благодаря большим стеклянным дверям создается выход на террасу и в сад. Второй этаж включает три спальни, коридор и две ванные комнаты с туалетом. На мансарде — дополнительная спальня, коридор и еще одна ванная комната с туалетом.
Строительные работы будут завершены к 3-й удлиненной стадии: будут готовы фундамент, несущая конструкция, крыша с изоляцией и фасад. Также предусматривается установка окон и дверей из ПВХ/АЛЮ и подготовка необходимых коммуникаций. Планируется современная система отопления, использующая тепловой насос, соединенный с напольным отоплением. Дом подключен ко всем коммунальным услугам. По желанию, возможна полная отделка в соответствии с вашими предпочтениями.
Эта недвижимость станет идеальным вариантом для семей, требовательных покупателей и инвесторов, стремящихся приобрести новостройку в одном из самых престижных районов Любляны на перспективу последующей продажи или сдачи в аренду. В наличии также находится конечный дом с большей площадью и более просторным участком.
- Площадь: 145,20 м²
- Этажи: первый + второй + мансарда
- Количество спален: 4
- Количество ванных: 3
- Площадь земельного участка: 144,40 м²
- Терраса: 8,00 м²
- Парковочные места: 2 частных
- Сад, атриум
- Теплый пол, тепловой насос
- Оптоволоконный интернет
- Близость к школе, природным и рекреационным зонам
- Удобно для семей и пожилых людей
Цена: 449,990 евро

Вернуться к списку
Вывести в PDF