Дом, расположенный в Портороже
Параметры
В центре Порторожа выставлен на продажу дом, построенный в 1900 году и частично модернизированный с 2016 по 2019 год. Площадь здания составляет 91,32 м², а прилегающий участок — 150 м². Дом обращён на юго-запад и располагается в шаговой доступности от важных городских объектов, таких как магазины, рестораны, учебные заведения, детские сады, медицинские центры, почта и банки. Также рядом находятся автобусная остановка, многочисленные пешеходные и велосипедные дорожки, а до центрального пляжа Порторожа можно дойти пешком.
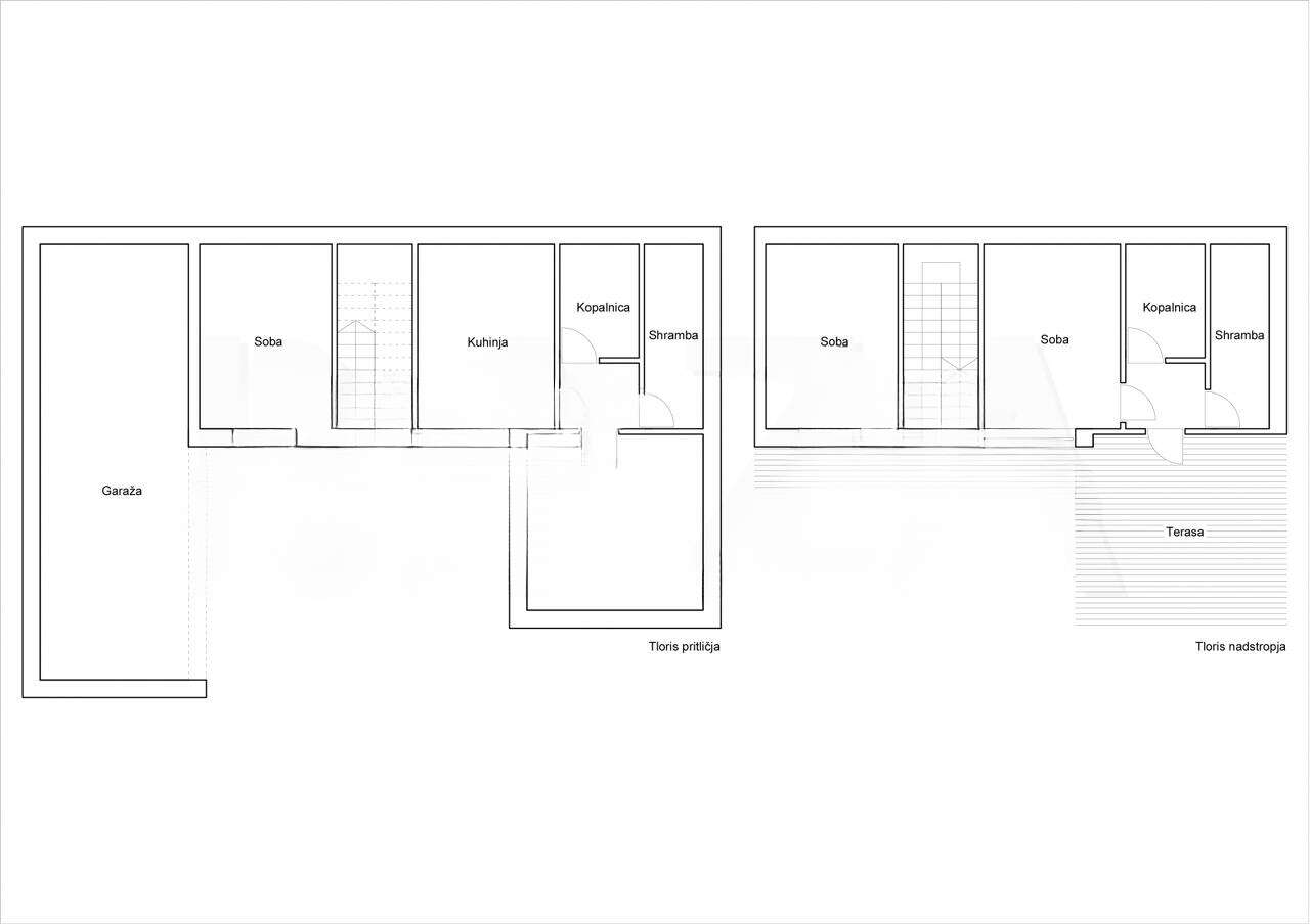
Жилое строение насчитывает два уровня. На первом этаже имеются гараж, летняя кухня, просторный двор, спальня, кухня с зоной для столовой, гостиная и ванная комната. На втором этаже расположены две спальни, ванная и терраса, куда ведет лестница. Дом подключен ко всем необходимым коммуникациям, отопление осуществляется электрическим центральным отоплением, а две климатические системы обеспечивают как обогрев, так и охлаждение воздуха.
Технические данные:
- Общая площадь: 91,32 м²
- Число спален: 3
- Количество ванных комнат: 2
- Дополнительное помещение
- Площадь участка: 150 м²
- Наличие террасы
- Климатическая система
- Отопление через климатическую систему
Эта недвижимость отлично подходит для инвесторов благодаря своему выгодному расположению в центре туристического района. В стоимость включена визуализация возможных изменений во внешнем облике здания. Дом предлагается за 595,000 EUR.

Вернуться к списку
Вывести в PDF