Квартира с четырьмя комнатами в Рожной Долине
Параметры
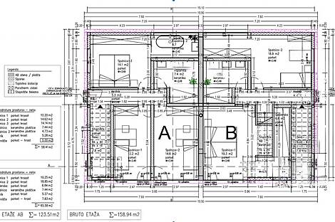
Представляем на продажу современное четырехкомнатное жилье на двух уровнях в районе Рожная Долина, Любляна, с планируемой площадью 123,5 м². Этот объект является частью двухквартирного здания и располагает частным зеленым участком размером 96 м² с двумя парковочными местами на улице. Завершение строительства квартиры ожидается к концу 2026 года; на текущий момент она продается на третьей удлиненной строительной стадии.
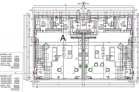
На первом уровне, с площадью 65,1 м², размещены просторная гостиная зона, совмещенная с кухней и обеденной зоной, которые открываются в личный сад. В дополнение имеются гостевой туалет, складское помещение и прихожая. На втором этаже размером 58,41 м² расположены главная спальня с собственной ванной, две детские спальни и еще одна ванная комната.
Собственное отопление будет обеспечиваться системой теплового насоса «вода – воздух». Окна из алюминия будут установлены как трехслойные и энергосберегающие, с автоматическими жалюзи, отвечающими стандартам класса энергоэффективности A2. Территория оснащена готовым газоном и зонирована для установки живой изгороди.
Расположенное в непосредственной близости от гимназии Вич, жилье имеет удобный доступ ко всей необходимой городской инфраструктуре и быстрому проезду к центру города.
- Общая площадь: 123,5 м²
- Количество этажей: 2
- Число спален: 3
- Количество санузлов: 2
- Площадь земельного участка: 96 м²
Стоимость: 569 000 EUR

Вернуться к списку
Вывести в PDF