Новая Горица, 3-комнатная квартира
Параметры
Великолепная трехкомнатная квартира в Надгорице. Новое здание, расположенное на втором этаже двухэтажного дома, готово к немедленному вселению и полностью обставлено. В этом жилом комплексе всего 16 квартир, включая различные типы от компактных студий до просторных трехкомнатных вариантов.
Здание выполнено в современном и функциональном стиле с применением высококачественных материалов, обеспечивающих отличную теплоизоляцию, что делает его энергосберегающим (энергоэффективность класса A2). Все квартиры проектировались с учетом потребностей семей и проживающих в одиночку. Комплекс располагает детской игровой зоной и площадками для развлечений.
В квартире есть кладовая в подвале и парковочное место, готовое для установки электрозарядной станции для автомобиля. Также имеется крытый балкон, где вы сможете насладиться свежим воздухом. Все ключевые транспортные узлы, включая автомагистраль и центр Любляны, расположены в непосредственной близости. Дружественная и тихая обстановка с доступом к природе подчеркивает дополнительную привлекательность данной квартиры.
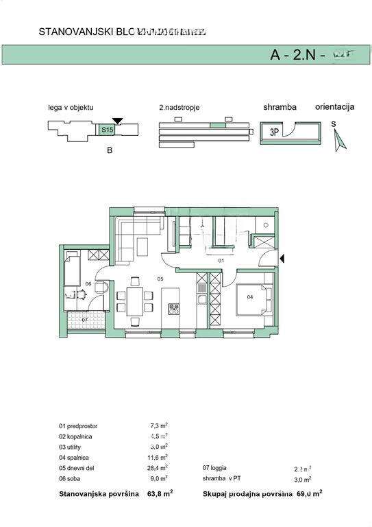
- Площадь: 69 м²
- Этаж: 2 из 2
- Парковка: 1 открытое место
- Кладовая: 3 м²
- Крытый балкон: 2,2 м²
- Окна: ПВХ с тройным остеклением, электрическими жалюзи и москитными сетками
- Отопление: газовый теплый пол, электроребра в ванных комнатах
- Интернет: оптоволокно
- Вентиляция: локальные рекуператоры и заранее установленные воздуховоды для кухонной вытяжки
- Электроника: видеодомофон
- Ванная: укомплектована сантехникой, душевой кабиной, шкафчиком и зеркалом
Цена: 432 540,00 EUR

Вернуться к списку
Вывести в PDF