Двухкомнатная квартира в районе Бежиград
Параметры
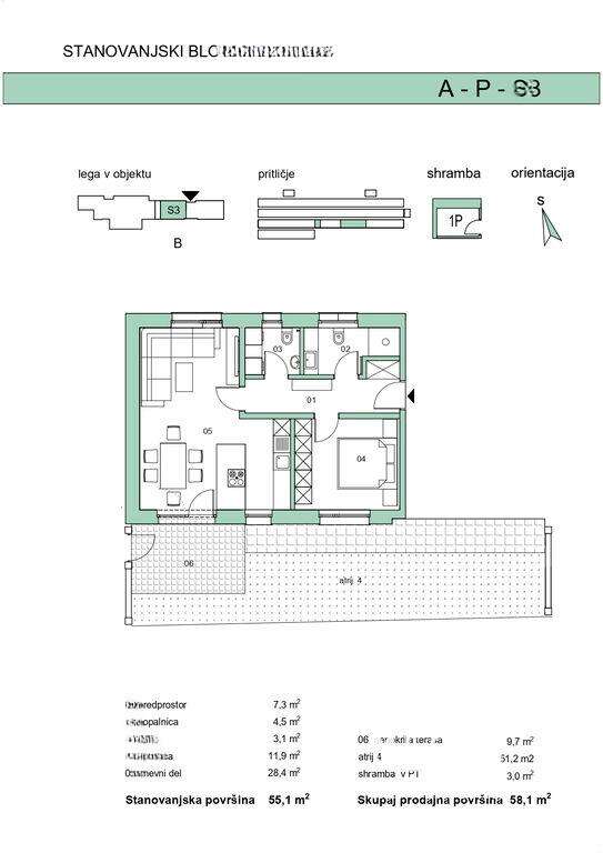
Продается двухкомнатная квартира в районе Надгорица, Любляна, расположенная в новостройке на первом этаже современного жилого комплекса из двух этажей. Общая площадь составляет 58 м², и заселение возможно сразу после приобретения. Здание демонстрирует высокий класс энергоэффективности А2 благодаря использованию современных строительных технологий, качественных материалов и надежной термоизоляции.
У квартиры есть просторный атрий размером 51,2 м² и терраса площадью 9,7 м², что создает идеальные условия для отдыха на свежем воздухе. Все необходимые услуги включены: кладовая в подвале, выделенное парковочное место с возможностью установки зарядного оборудования для электромобилей, подъемник и современные инженерные системы, такие как локальные рекуператоры и установки для климатической системы.
Интерьер оформлен с использованием лучших материалов: на полу уложен дубовый паркет, окна из ПВХ с тройным остеклением оснащены автоматическими жалюзи. Ванная комната полностью оборудована сантехническими приборами. Отопление обеспечивается с помощью газового котла с теплым полом в комнатах и дополнительными электрическими радиаторами в ванной.
- Общая площадь: 58 м²
- Этаж: 1 из 2
- Класс энергоэффективности: A2 (10-15 кВт·ч/м²/год)
- Парковочное место: 1
- Кладовая: 3 м²
- Отапливаемая площадь: 55,1 м²
- Терраса: 9,7 м²
- Атрий: 51,2 м²
- Интернет: оптоволоконное соединение
Стоимость: 413 175 евро

Вернуться к списку
Вывести в PDF