Центральное коммерческое помещение
Параметры
Предлагаем вашему вниманию коммерческое помещение, идеально подходящее для использования в сфере общественного питания, которое находится в самом сердце Любляны, на улице Жупанчичева, в престижном комплексе Шелленбург. Это помещение, расположенное на первом этаже, ориентировано на восточную сторону и открывает вид на улицу Жупанчичева. Объект, возведенный в 2023 году, достиг третьей строительной фазы и готов к отделочным работам. Возможны как длительная аренда, так и покупка помещения.
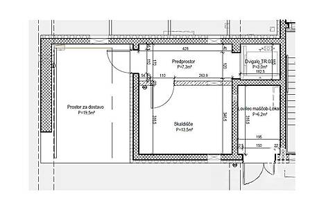
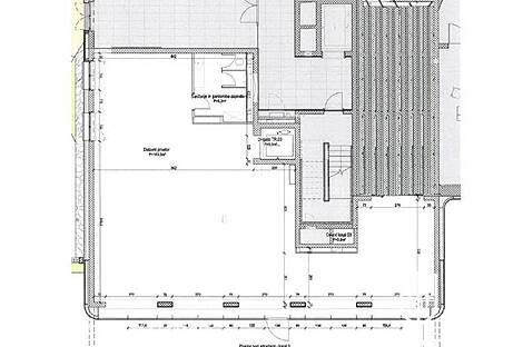
Пространство продумано с точки зрения архитектуры и функциональности: внутренняя площадь составляет 166 м², а перед входом предусмотрена дополнительная терраса площадью 57 м². В подземной части комплекса имеется парковочное место и кладовая, общей площадью 40 м². Подключены все необходимые городские коммуникации, включая оптоволоконный интернет, центральное отопление и охлаждение, а также водоснабжение, электроснабжение и канализацию.
Объект готов к сделке с юридической точки зрения и является последним доступным коммерческим пространством в заселенном комплексе. Район с развитой инфраструктурой делает его отличным выбором для бизнеса.
Шелленбург расположен в стратегически выгодной зоне: до центра города и Тромостовья — 853 шага, до парка Тиволи — 787 шагов. Ближайшая автобусная остановка находится всего в 130 шагах, а главная железнодорожная станция — в пяти минутах пешком. Удобный выход на основные городские магистрали обеспечивается через улицы Блейвейсова и Целовшка. В непосредственной близости находятся общественный бассейн Ilirija и оперный театр.
- Общая площадь: 263 м²
- Площадь интерьера: 166 м²
- Терраса: 57 м²
- Парковочное место и кладовая: 40 м²
- Ориентация: Восток
- Парковка для клиентов: на улице Жупанчичева у входа
- Энергоэффективность: A2 (10 - 15 кВтч/м² в год)
Инвестиционный потенциал данного объекта оценивается на уровне 9 из 10 благодаря его уникальному местоположению, перспективам развития района и специально организованной коммерческой структуре, готовой к эксплуатации.
Стоимость объекта составляет 1.261.500,00 EUR, без учета налога на добавленную стоимость.

Вернуться к списку
Вывести в PDF