Торговое здание Стегне
Параметры
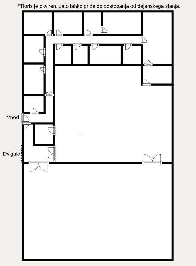
На продажу выставлены коммерческие площади в промышленной зоне Стегне (Любляна-Шишка) с общим размером в 1.531 м². Помещения, находящиеся на первом этаже современного бизнес-центра, были обновлены в 2004 году. Они подходят для производственных процессов, хранения товаров и использования под офисы.
- Площадь: 1.531 м²
- Этаж: 1
- Назначение: производство, склады, офисные цели
- Несущая способность конструкции рассчитана под промышленные нагрузки
Объект юридически подготовлен к продаже, а налог на недвижимость остается обязательством покупателя. Внутреннее зонирование подразумевает: офисы размерами 378 м², 540 м² отведено под производство, и 613 м² занимают складские помещения. Возможна реконфигурация в единое коммерческое пространство, а также доступна опция покупки дополнительных 500 м² на втором этаже здания.
Зона Стегне выделяется своей развитой инфраструктурой, обеспечивающей простой доступ к транспортным узлам города, что значительно облегчает ведение бизнеса.
Технические характеристики:
- Год постройки: 1986
- Год обновления: 2004
- Три зонированные функциональные зоны
- Варианты перепланировки
Инвестиционная привлекательность объекта оценивается в 8 баллов из 10. Благодаря развитой инфраструктуре и гибкости применения, эта недвижимость становится отличной возможностью для бизнес-инициатив.
Общая стоимость составляет 1.455.000,00 EUR .

Вернуться к списку
Вывести в PDF