Квартира на две комнаты в центре города.
Параметры
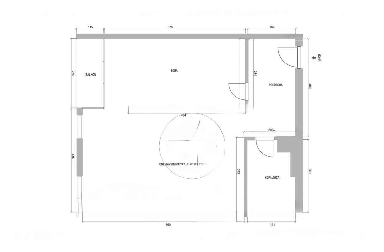
Добро пожаловать в вашу новую резиденцию в сердце Любляны, уютно расположенную в престижной Виле Урбана. Эта просторная и наполненная светом квартира с двумя комнатами, общей площадью 60 квадратных метров, предлагает идеальное сочетание городской динамики и личного простора. Современно оборудованное здание, возведенное в 2008 году, предоставляет все необходимые удобства буквально за углом.
Необыкновенно удачное расположение в центре города позволяет легко добраться до рынков, стильных бутиков, разнообразных услуг и множества ресторанов. Рядом с вами раскинулись зеленые просторы Градского холма, предлагая неповторимое сочетание городской жизни с природой.
Квартира наполнена естественным светом благодаря обширным стеклянным панелям, создающим ощущение простора и свободы. Высокие потолки и открытый план, соединяющий кухню с обеденной зоной и гостиной, плавно продолжаются на балконе, обеспечивая удобство для современного образа жизни.
Планировка включает в себя:
- Прихожую;
- Открытую кухонную зону с уголком для еды: центр домашнего уюта и общения;
- Гостиную с выходом на балкон: светлое и комфортное пространство;
- Спальню: тихое место для отдыха и сна;
- Современную ванную комнату с туалетом, оснащённую по последнему слову техники.
Квартира также оборудована всеми необходимыми удобствами: в доме есть лифт, предусмотрено центральное отопление, а также домофон. Все это поддерживается энергетическим сертификатом класса C.
Цена: 600,000 EUR

Вернуться к списку
Вывести в PDF