Квартира с тремя комнатами в Поле
Параметры
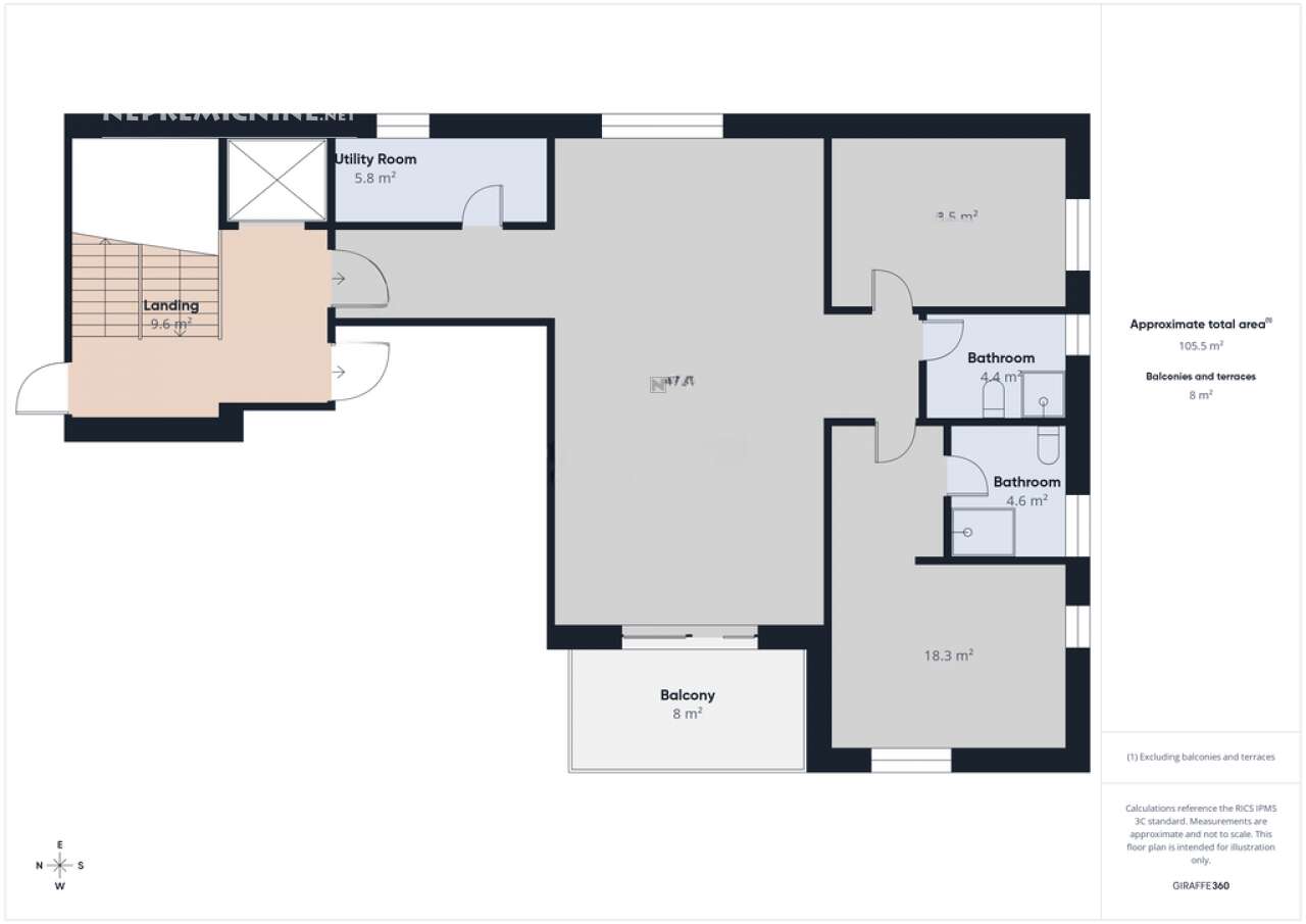
Предлагаем вашему вниманию современную трехкомнатную квартиру в новом доме, расположенном в районе Поле. Площадь объекта составляет 110,6 м². Жилье занимает первый этаж двухэтажного строения и планируется к сдаче летом 2026 года. В состав квартиры входит 93,4 м² жилой площади, 8 м² занимает лоджия, а 9,9 м² — кладовое помещение.
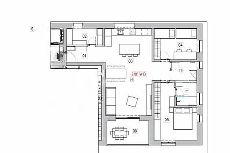
В жилой зоне организованы кухня, гостиная, спальня, детская комната и две ванные комнаты, а также предусмотрено хозяйственное помещение. К квартире прилагается кладовка размером 9,9 м², крытое парковочное место площадью 16,8 м² и дополнительное открытое парковочное место в 13 м², что делает парковку более удобной.
Окна выполнены из алюминия и ПВХ с тройными изоляционными стеклами и оснащены жалюзи. Входная дверь устойчива к взлому и пожаробезопасна. Здание построено из армированного бетона с кирпичом, а снаружи утеплено 20-сантиметровым полистиролом. Отопление в доме газовое, подведена оптоволоконная связь, подготовлено место для установки кондиционера и места для электрической зарядной станции.
Благодаря расположению в районе Поле, жилье обеспечивает быстрый доступ к основным транспортным узлам и всем необходимым элементам инфраструктуры, включая магазины, школы, детские сады и другие удобства, упрощающие повседневные дела. Жилье идеально подходит для тех, кто ищет современное и доступное жилье в спокойной обстановке.
- Площадь: 110,60 м²
- Этаж: 1 из 2
- Количество спален: 2
- Количество ванных комнат: 2
- Есть балкон
- Включено парковочное место
- Напольное отопление
- Энергоэффективность: A1 (0 - 10 кВтч/м²год)
- Отопление: газом
Цена: 530 000 EUR

Вернуться к списку
Вывести в PDF