Жильё в Новом Поле
Параметры
В жилом комплексе Vila Slape 2 в районе Поле (Ново-Поле) предлагается к продаже просторная трехкомнатная квартира. Этот объект характеризуется использованием высококачественных материалов и современных технологий, что обеспечивает низкий уровень энергопотребления и минимальные эксплуатационные расходы. Комплекс состоит всего из семи квартир, предоставляя возможность наслаждаться современной архитектурой в сочетании с комфортом и высоким уровнем жизни.
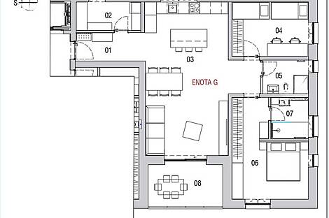
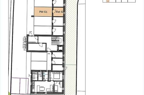
Квартира имеет общую площадь 113,10 м², из которых непосредственно жилые помещения занимают 93,40 м², и находится на втором уровне в двухэтажном здании. Интерьер отличается высокими потолками и просторными комнатами, а качественная отделка добавляет уюта и комфорта. Здесь предусмотрены три комнаты, две ванные и обширная гостиная, объединённая с кухней и столовой зоной. В стоимость включено два парковочных места, одно из которых под навесом, а также просторная лоджия с живописным видом на природу.
Комплекс располагается рядом с важными объектами городской инфраструктуры: неподалеку находится остановка общественного транспорта, детский сад, школа, банк и магазины. Центр Любляны и автомагистраль в нескольких минутах езды. Для любителей активного отдыха рядом находятся популярные рекреационные маршруты, такие как Головец и Орле.
- Площадь: 110,60 м²
- Этаж: 2 из 2
- Энергокласс: A2 (10 - 15 кВтч/м² в год)
- Парковка: 2 места (1 под навесом)
- Лоджия: 9,80 м²
- Отопление: газовая система, возможность установки кондиционеров и зарядной станции для электромобилей
- Покрытие полов: трехслойный паркет, крупноформатная керамика
- Оконные системы: алюминиевые профили снаружи, пластиковые изнутри, тройное стеклопакет
- Ориентация: юго-восток-юг
- Интернет: оптоволоконная связь

Вернуться к списку
Вывести в PDF