Дом с террасой возле парка Тиволи
Параметры
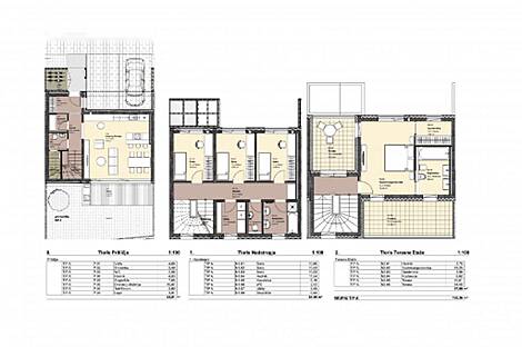
Познакомьтесь с великолепным современным домом с террасой , расположенным в тихом уголке Нижней Шишки. Общая площадь дома равна 186,36 м², а прилегающий участок занимает 301 м². Этот дом содержит три уровня: основной этаж и два верхних.
Одним из главных преимуществ имущества является его стратегическое расположение рядом с парком Тиволи, а также удобная инфраструктура. До парка можно добраться на машине всего за 5 минут , а до начальной школы и детского сада — всего лишь 6 минут пешком. Общественный транспорт и выезд на автомагистраль также в пределах легкой досягаемости. Завершение строительства запланировано на конец 2026 года.
Недвижимость спроектирована с учётом современных потребностей. На первом этаже находится просторная прихожая, кладовая, отдельный туалет, просторная гостиная с кухней, техническое помещение и сарай. На втором этаже — три спальни, ванная комната, туалет и бытовая. На третьем этаже основная спальня с гардеробной, ванная комната и пара обширных террас .
Особенности дома включают:
- Четыре спальни и две ванные комнаты
- Терраса и атриум
- Система теплого пола и тепловой насос для эффективного отопления
- Кондиционер для обеспечения комфортного микроклимата
- Высокая энергоэффективность (класс A1)
- Качественная постройка с классической и современной архитектурой
- Два индивидуальных парковочных места
- Трислойные окна для превосходной изоляции и естественного освещения
Это идеальное жилье для семей , стремящихся насладиться комфортом и современным образом жизни в непосредственной близости от центра города и всех необходимых объектов. Стоимость составляет 1 100 000,00 €.

Вернуться к списку
Вывести в PDF