Новая Любляна Шишка Нижняя коттедж с террасой
Параметры
В тихом районе Нижняя Шишка предлагается современный коттедж с террасой, обеспечивающий идеальные условия для семейной жизни благодаря близости к парку Тиволи. До парка всего 5 минут на машине, а основные объекты инфраструктуры находятся в пешей доступности: начальную школу можно достичь за 3 минуты, на дорогу до детского сада потребуется 6 минут, а автобусная остановка находится в 7 минутах ходьбы.
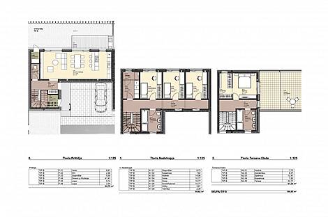
Общая площадь дома составляет 199,65 м², и он распределен на трех уровнях: первый этаж и два верхних. На первом этаже расположены прихожая, кладовая, туалет, просторная гостиная с кухней и техническое помещение. Второй этаж вмещает три спальни, ванную комнату, туалет и хозяйственное помещение. Третий этаж включает спальню с гардеробной, другую ванную и две обширные террасы. Благодаря качественным строительным материалам и трехслойным окнам, современный дизайн дома обеспечивает светлые пространства.
Дом предлагает множество удобств, включая полы с подогревом, тепловой насос и кондиционер, а также защитные двери для обеспечения безопасности. Площадь земельного участка составляет 325 м², включая две частные парковочные зоны. Энергоэффективность дома соответствует классу A1 (0 - 10 кВтч/м² в год).
Поблизости находится разнообразная инфраструктура, такие как рекреационные зоны, удобные выезды на автостраду и близость к центру города. Это уникальная возможность для тех, кто мечтает об уютной жизни в современном доме.
- Площадь: 199,65 м²
- Количество этажей: первый и два верхних
- Спален: 4
- Ванных комнат: 2
- Кладовая
- Отдельный туалет
- Размер участка: 325 м²
- Терраса
- Два парковочных места
- Полы с подогревом
- Тепловой насос
- Кондиционер
- Энергоэффективность: класс A1 (0 - 10 кВтч/м²/год)
- Удобное расположение
Цена: 1 180 000 евро

Вернуться к списку
Вывести в PDF