Дом в два этажа в районе Бежиград
Параметры
Уникальное предложение: двухэтажная недвижимость на продажу в престижном районе Бежиград города Любляна. Построенный в 1932 году и обновлённый в 1982, дом располагается на площади 199 м² с участком 488 м². Среди его главных достоинств — привилегированное местоположение и высокая практичность. Энергетический класс — G.
Недвижимость состоит из двух отдельных квартир, что отлично подойдёт как для инвестиций, так и для комфортного проживания с возможностью дополнительного дохода. Вы можете осуществить перепланировку пространства и создать уютный дом вашей мечты.
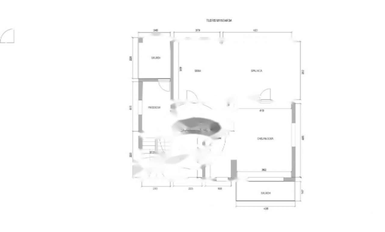
Размещение помещений:
- Подвал: котельная и хранилища.
- Первый этаж (первая квартира): прихожая, кухня с обеденной зоной, гостиная, две комнаты, ванная с туалетом.
- Второй этаж (вторая квартира): прихожая, кухня с обеденной зоной, объединённая с гостиной и балконом, две комнаты, ванная с туалетом.
Особые преимущества:
- Парковочное место перед зданием.
- Большой и привлекательный сад, подходящий как для семейных собраний, так и для отдыха на природе.
- Тихая обстановка в сочетании с полной доступностью необходимой инфраструктуры.
Дом находится в районе с лёгким доступом ко всем транспортным узлам. Вблизи располагаются международные школы, детские сады, магазины, рестораны и зоны для отдыха и активного досуга.
Цена: 630 000 EUR

Вернуться к списку
Вывести в PDF