Квартира с четырьмя комнатами в Любляне
Параметры
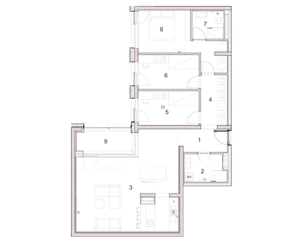
Представляем вам новую четырехкомнатную квартиру площадью 115,68 м², расположенную на четвертом этаже девятиэтажного дома в районе Нового Бежиграда, Любляна. Проект возводится на месте старой типографии в Бежиграде и представляет собой современный и экологичный жилой комплекс, расположенный между улицами Толстого и Маэра-Спасичева.
Новый Бежиград воплощает в себе инновационный подход к развитию района, где акцент делается на зелёность, открытые и светлые пространства. Благодаря террасной архитектуре зелёные зоны располагаются даже на верхних этажах, а обширные стеклянные фасады обеспечивают просторные виды на величественные Юлийские Альпы и наводят помещения светом. Для строительства используются высококачественные и долговечные материалы, что гарантирует будущую стойкость к природным условиям.
Квартира отличается просторными и светлыми жилыми комнатами. В большинстве апартаментов предусмотрено как минимум одно открытое пространство, предлагающее насладиться панорамным видом на окрестные пейзажи и горы. В жилом комплексе приоритет отдается зелёным зонам, которые способствуют свежему воздуху и комфортной температуре.
Планировка квартиры включает: прихожую, кабинет, спальню, гардероб, дневную зону с объединенной кухней и столовой, две ванные комнаты и мансарду.
- Площадь: 115,68 м²
- Этаж: 4 из 9
- Количество спален: 3
- Количество ванных комнат: 2
Цена: 693 468 евро

Вернуться к списку
Вывести в PDF