Квартира с тремя комнатами в районе Бежиград
Параметры
На продажу выставлена стильная трехкомнатная квартира в районе Бежиград в Любляне. Этот объект площадью 107,25 м² занимает пятый этаж девятиэтажного здания, которое планируется завершить в 2028 году. Стоимость составляет 641 585 EUR.
Квартира войдет в состав новейшего жилого комплекса "Новый Бежиград", который строится на территории бывшей типографии в районе Бежиград, между улицами Толстого и Машера-Спащича. Проект предлагает жить в зелёной и открытой среде с террасированными зданиями, предоставляя возможность наслаждаться растительностью даже на высоких этажах. Благодаря большим стеклянным фасадам, в комнаты проникнет обилие солнечного света, а также откроется живописный вид на Юлийские Альпы. Здание возводится из качественных долговечных материалов, адаптированных к условиям окружающей среды.
Жилые и общественные зоны отличаются ярким освещением, простором и хорошей вентиляцией. У большинства квартир будет доступно внешнее пространство, чтобы восхищаться видами на окружающую местность и горы. Гармоничное сочетание зелени в квартале способствует свежести воздуха и комфорту температуры круглый год.
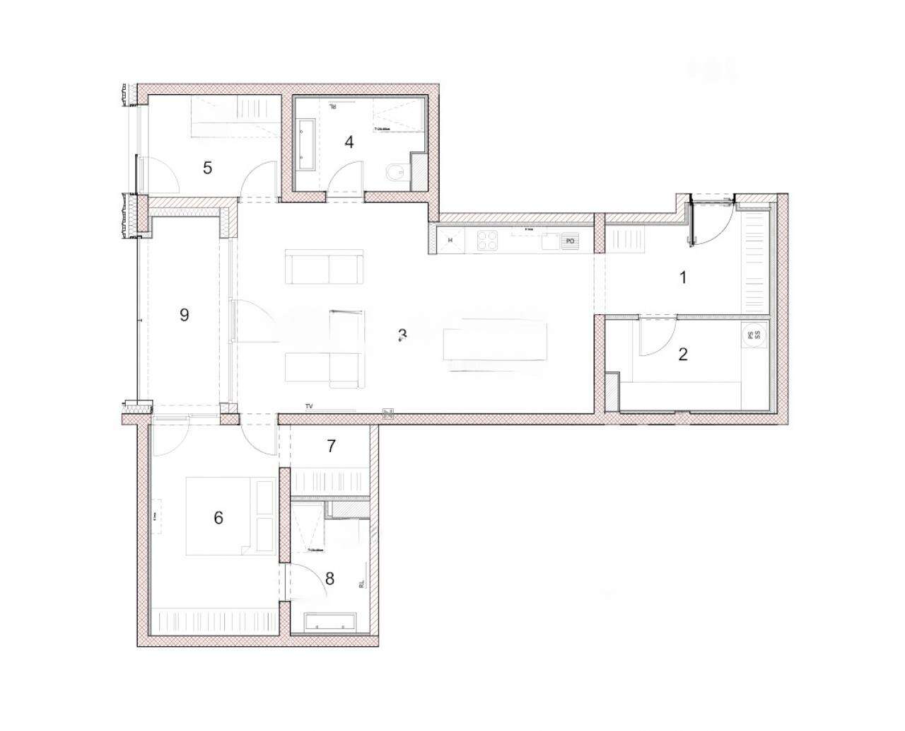
- Общая площадь: 107,25 м²
- Этаж: 5/9
- Количество спален: 2
- Количество ванных комнат: 2
- Дополнительно: Лоджия, кладовая
- Планировка: прихожая, ванная комната, гостиная с кухней/столовой, спальня, вспомогательное помещение, кабинет, гардеробная, вторая ванная комната, кладовая
Старт заселения квартир намечен на лето 2028 года.

Вернуться к списку
Вывести в PDF