Трёхкомнатная квартира в Бежиграде
Параметры
В продаже появилось жильё в новом комплексе "Новый Бежиград", расположенном в районе Бежиград, Любляна. Эта квартира с площадью 110,61 м² расположена на четвёртом уровне девятиэтажного здания, завершение строительства которого запланировано на 2028 год.
Жилой комплекс "Новый Бежиград" представляет концепцию развития района, объединяющую зелёные, открытые и залитые светом пространства. Современная террасная архитектура создаёт дополнительные зелёные пространства даже на верхних этажах. Широкие стеклянные фасады дарят много дневного света и открывают задумывающие виды на Юлийские Альпы.
Строительство планируется из высококачественных и долговечных материалов, устойчивых к неблагоприятному воздействию окружающей среды. Просторные жилые площади включают в себя большие стеклянные стены, обеспечивающие комфорт и визуальную связь с окружающей природой.
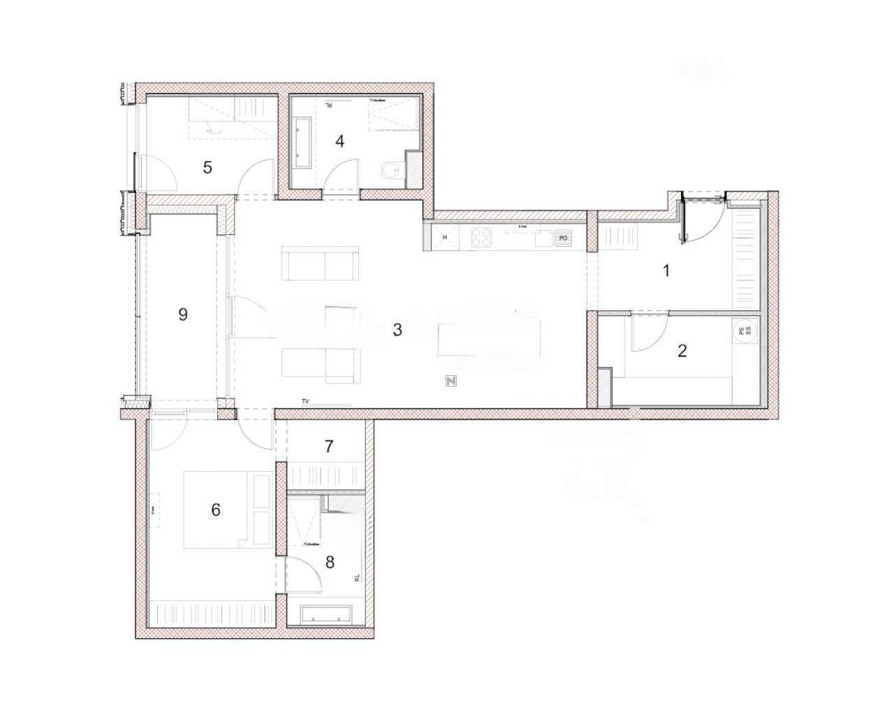
Внутреннее распределение помещений включает:
- Холл
- Две ванные комнаты
- Гостиная объединённая с кухней/столовой зоной
- Спальню
- Кабинет
- Подсобное помещение
- Гардеробную
- Лоджию
- Два кладовых помещения
Этот район славится отличной транспортной связью и удобством доступа ко всем важным объектам городского обустройства. Расположение между улицами Толстого и Мащёрева-Спашичевой обеспечивает быстрый путь как в центр города, так и в спокойные окраинные районы.
Стоимость: 638 776 EUR

Вернуться к списку
Вывести в PDF