Центральная 2-комнатная квартира
Параметры
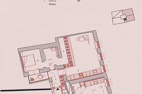
Уникальная возможность приобрести апартаменты в самом сердечке Любляны, расположенные на втором этаже дома, возведенного в историческом 1876 году и полностью планируемого к обновлению в 2025 году. Квартира площадью 51,3 м² включает две комнаты и предлагает современные удобства, такие как подогреваемые полы и газовое отопление.
Эта недвижимость выделяется своим исключительным расположением — прямо у берегов реки Любляницы. Вы получаете доступ к живописным набережным, а также к различным культурным, историческим и коммерческим объектам. В непосредственной близости находятся популярные площади и улицы, такие как Левстиков trg с множеством кафе и ресторанов, а также оживленное Канкарево набрежье с магазинами и развлечениями.
Семьи с детьми оценят близость к учебным заведениям, детским садам и гимназиям, а также магазинам, аптекам и библиотекам. Водители оценят возможность парковки вблизи Левстикова trg, в других удобных местах и в городских гаражах. ✈️
Здание, находясь между рекой и замком, дарит захватывающие виды на Любляницу и величественный Люблянский замок, а также преимущества модернизированной набережной Галлюса. Здесь легко можно добраться до всех ключевых городских достопримечательностей и общественных центров.
В подъезде и дворовом пространстве предусмотрены различные удобства для жильцов, включающие велосипедные парковки, скамьи с подогревом и озелененные уголки для уюта. Реновация здания сбережет его исторический облик и добавит современный комфорт, включая новый лифт, деревянные окна и двери с продвинутыми системами безопасности. ️
Будущие владельцы смогут выбрать разные варианты отделки квартиры: от простых до дизайнерских, соответствующих их желаниям, с возможностью объединения с соседним помещением для расширения пространства.
- Площадь: 51,30 м²
- Этаж: 2 из 3
- Лифт: Да
- Спальни: 1
- Ванные комнаты: 1
- Отопление: Газ и теплые полы
- Ориентация квартиры: Юго-восток
Цена: 473 000,00 EUR

Вернуться к списку
Вывести в PDF