Четырёхкомнатная квартира в районе Бежиград
Параметры
Просторная четырехкомнатная квартира расположена в современном жилом комплексе в районе Нови Бежиград, Любляна. Апартаменты общей площадью 186,02 м² находятся на втором этаже девятиэтажного дома. Сдача объекта в эксплуатацию запланирована на лето 2028 года. Отличительная черта комплекса — это его современная архитектура с террасами и зонированием, предоставляющим жителям зеленые зоны на верхних этажах.
Комплекс Нови Бежиград возводится на месте бывшей типографии, придавая району Бежиград новый эстетический облик благодаря своей просторной открытости, зелёным зонам и светлым интерьерам. Широкие стеклянные фасады квартир наполняют их светом и предлагают потрясающие виды на Юлийские Альпы. Здание строится из надежных материалов, что гарантирует долговечность и защиту от погодных условий.
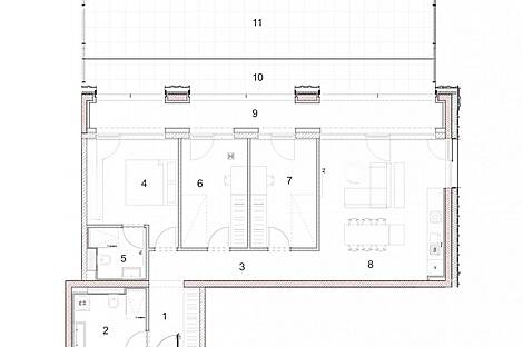
Квартира имеет светлые и просторные интерьеры с выходами на террасы и балконы, что позволяет наслаждаться свежим воздухом и природными панорамами. Зеленые насаждения вокруг комплекса обеспечивают приятную атмосферу и комфортный микроклимат. Планировки жилых помещений включают в себя:
- Предпокоюсь
- Три спальни ️
- Две ванные комнаты
- Гостиная, объединенная с кухней и столовой ️
- Кабинет ️
- Холл
- Внешние террасы
- Складские помещения
Цена: 787 468 EUR

Вернуться к списку
Вывести в PDF