Трёхкомнатная квартира в районе Бежиград.
Параметры
Предлагается стильная трехкомнатная квартира в новом жилом комплексе "Новый Бежиград", расположенном в районе Бежиград, Любляна. Площадь жилья составляет 104 м², и оно занимает цокольный этаж в девятиэтажном здании, окончание строительства которого запланировано на 2025 год.
Комплекс находится между улицами Толстого и Машера-Шпашичевой на территории, где ранее размещалась типография. Проект демонстрирует современную концепцию района Бежиград: зелёные пространства, открытые и светлые помещения. Уникальная террасная планировка позволяет создавать зелёные зоны даже на верхних этажах, а обширные стеклянные фасады обеспечивают естественное освещение и живописные виды на Юлийские Альпы. В строительстве здания будут использованы надёжные и прочные материалы, устойчивые к воздействию времени и природы.
Помещения квартир светлые и просторные, большинство из них оснащены хотя бы одним внешним пространством, чтобы жители могли наслаждаться видами окружающей природы и великолепием гор. Интегрированные зелёные насаждения в комплексе способствуют поддержанию свежего воздуха и комфортного температурного режима.
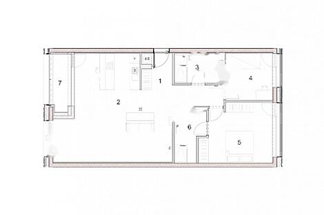
- Площадь: 104 м²
- Этаж: цокольный из 9
- Количество спален: 2
- Количество ванных комнат: 2
- Дополнительные помещения: прихожая, гостиная с кухней/столовой, кабинет, лофт, кладовая
Цена: 570 257 € ✨

Вернуться к списку
Вывести в PDF