Трёхкомнатная квартира в Кошезе
Параметры
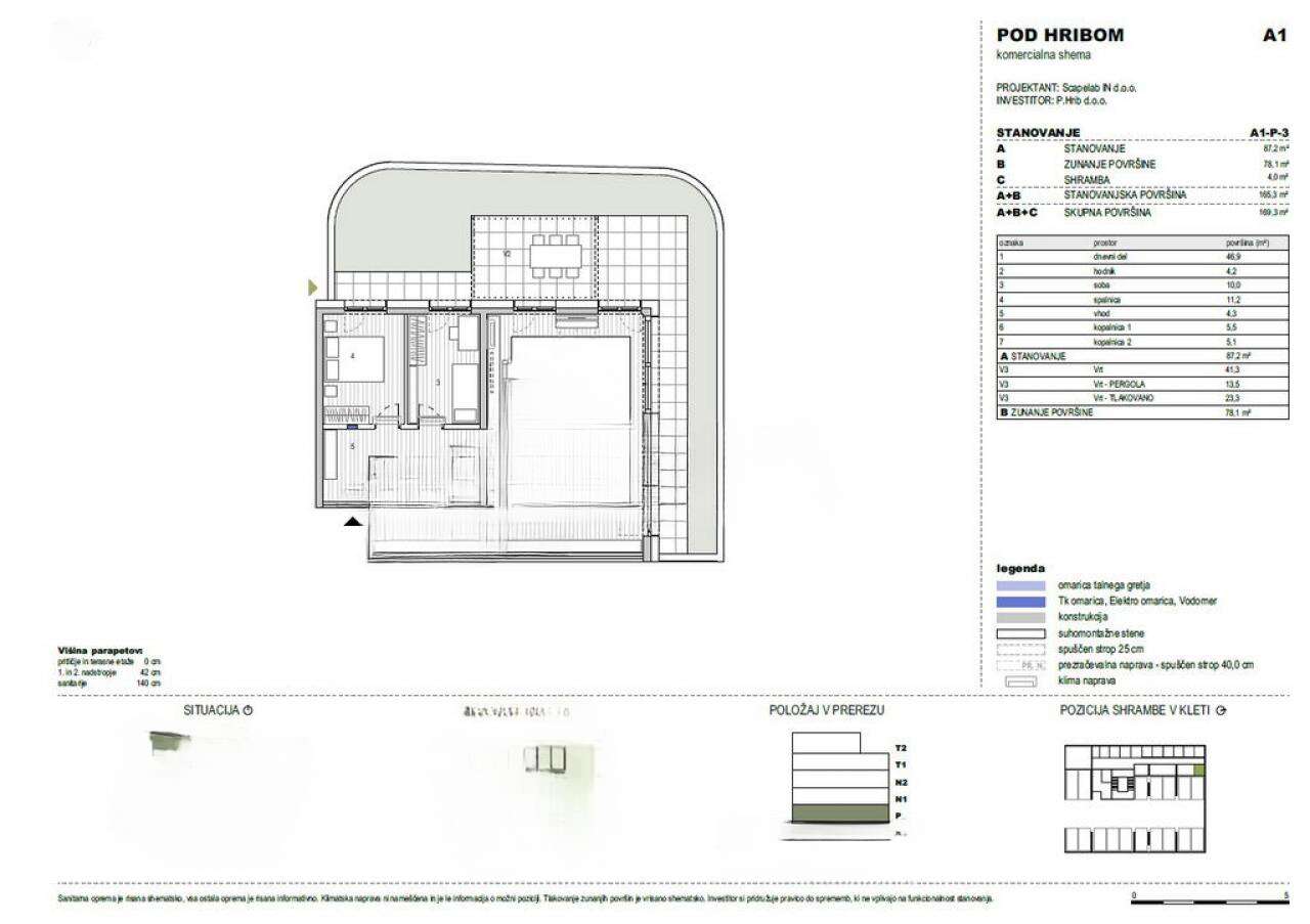
В продаже трехкомнатная квартира площадью 169,3 м² в современном проекте "Соседство под Холмом", расположенном в одном из самых элитных районов Любляны — Шишке. Завершение строительства запланировано на 2028 год. Квартира находится на первом из четырех этажей и обслуживается лифтом.
Комплекс располагается в зеленой зоне у лесопарка Шишенский холм и неподалеку от Рожника, Мостец и Косежского пруда . Здесь появятся семь архитектурно оригинальных зданий, включающих 111 современных квартир с числом комнат от двух до пяти, снабженных атриями, лоджиями или террасами, а также подземной парковкой с зонами для хранения и станциями для зарядки электромобилей.
Квартира предлагает высокий стандарт жизни благодаря тщательно продуманным решениям планировки и экологически чистым технологиям. Высокие потолки (около 2,65 м) создают ощущение простора. Встроенная механическая вентиляция с рекуперацией и система напольного отопления на базе теплового насоса обеспечивают комфорт и энергоэффективность.
Входная дверь делает упор на безопасность — она огнестойкая, взломостойкая, оборудована надежным замком и глазком с автоматическим закрытием. Для обеспечения уюта и конфиденциальности предусмотрены внешние электрические жалюзи и перголы на террасах и в атриях. Стойкие окна изготовлены из алюминиевых профилей или дерева с алюминиевым покрытием, а крыши озеленены интенсивно .
- Общая площадь: 169,3 м²
- Этаж: 1 из 4
- Количество спален: 2
- Количество ванных комнат: 1
- Отопление посредством теплового насоса
Стоимость квартиры: 822 000 €

Вернуться к списку
Вывести в PDF