Трёхкомнатная квартира в Бизовике
Параметры
Представляем вашему вниманию современное трёхкомнатное жильё в тихом и зелёном уголке района Бизовик, который расположился всего в 5 километрах от центра столицы Словении, в проекте «Виз-а-Вис». Это уникальный шанс насладиться удивительным сочетанием городской динамики и природы.
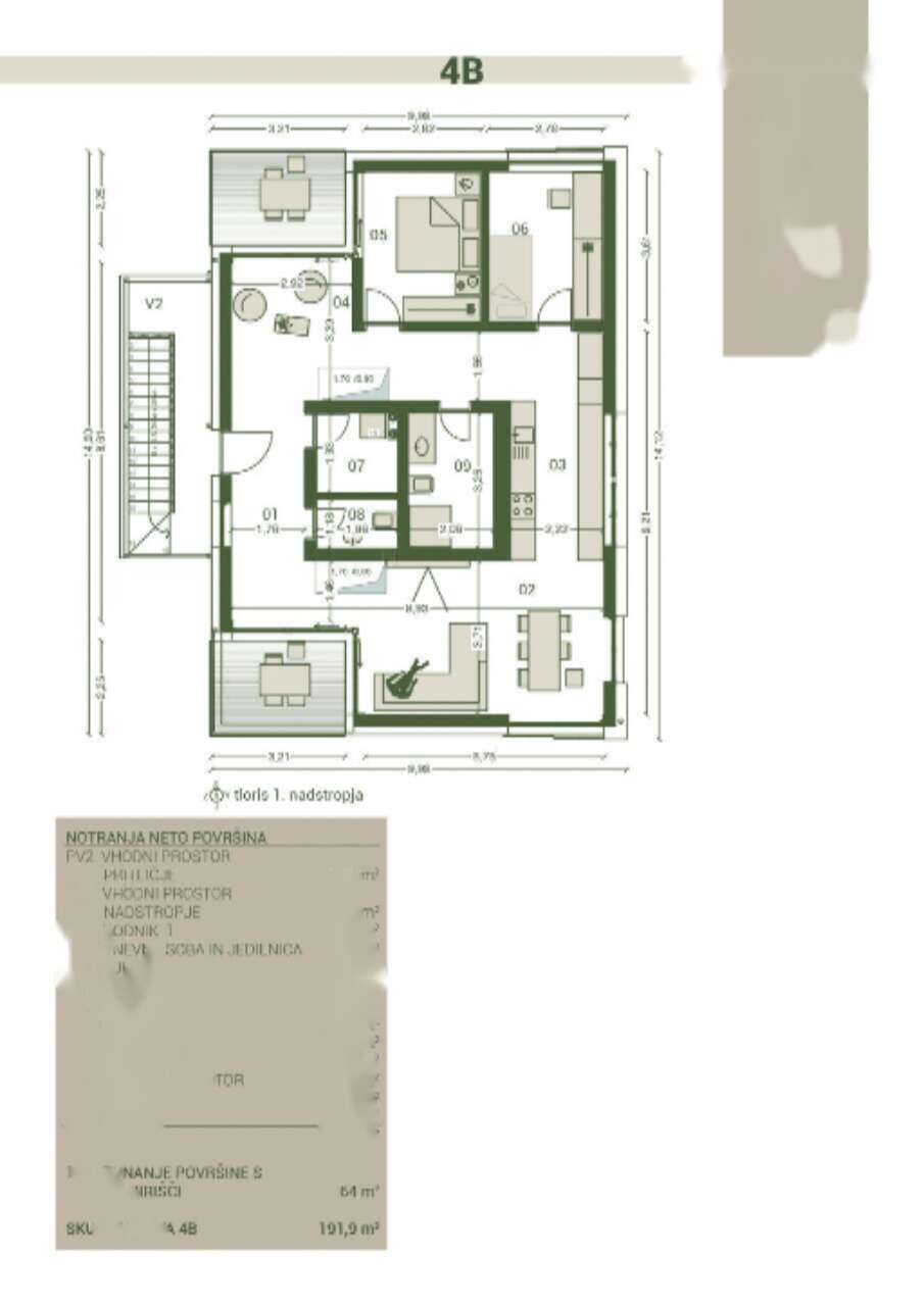
Комплекс «Виз-а-Вис» включает в себя пять двоквартирных домов и предлагает жильё с тщательно продуманной планировкой, сочетающей комфорт с функциональностью. Площадь квартиры составляет 191,9 м², из которых 127,9 м² занимают жилые пространства, а 64 м² отведены под внешние участки и два личных парковочных места.
Внутреннее пространство квартиры включает две спальни, ванную комнату, просторную гостиную с кухней, а также две террасы площадью по 7,22 м² каждая, прекрасно подходящие для отдыха на свежем воздухе. Здесь предусмотрено как напольное отопление, так и система кондиционирования с тепловым насосом. Возможность выбора межкомнатных дверей и напольного покрытия остаётся за будущими владельцами.
Строительство проекта уже началось, и ключи от нового жилья будут переданы в течение 24 месяцев. Проектом также предусмотрена возможность переоборудования мансарды для увеличения жилой площади, что позволяет адаптировать пространство под свои нужды.
- Общая площадь квартиры: 191,9 м²
- Этажность: 1 из 1
- Спален: 2
- Количество ванных комнат: 1
- Количество террас: 2, каждая по 7,22 м²
- Включённые парковочные места: 2 личных
- Тип отопления: напольное отопление с газовым отоплением
- Дополнительные удобства: кондиционер и тепловой насос
- Рядом с инфраструктурой: детский сад, школа, общественный транспорт и зоны отдыха
Цена квартиры установлена на уровне 479 000,00 EUR.️

Вернуться к списку
Вывести в PDF