Двухкомнатная квартира в центре
Параметры
В самом центре Любляны, предлагается стильная квартира с уникальной архитектурой и развитой городской инфраструктурой. Этот жилой комплекс новейшего поколения с охраняемой территорией расположен в сердце столицы, неподалёку от центра. ️
Апартаменты обладают высокими характеристиками в плане звукоизоляции и теплосбережения, а их грамотная планировка обеспечивает комфорт и домашний уют. Квартира находится на втором этаже четырёхэтажного здания и оснащена разнообразными террасами либо частными патио, относящимися к высокоэффективному классу A2. Напольное отопление, местные вентиляционные системы и возможность установки кондиционеров создают отличные условия для жизни в современном стиле.
К квартире прилагается кладовая в подвале, а также одно или два парковочных места в гараже. Вас ждёт комфортное проживание в уникальном комплексе с просторными зонами для отдыха, где каждый момент можно провести с наслаждением.
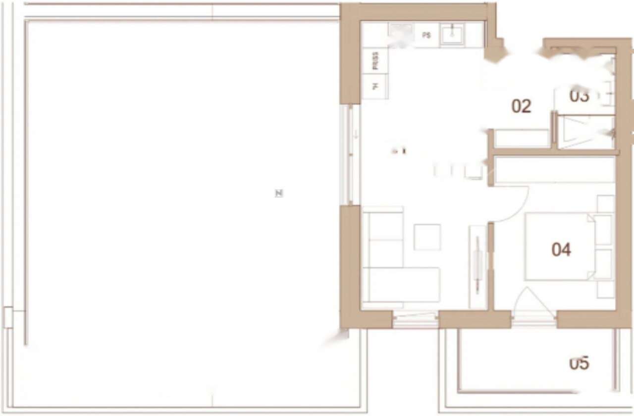
- Общая площадь: 111,65 м²
- Жилая площадь: 36,76 м²
- Быстрый доступ: Центр Любляны в шаговой доступности
- Площадь террас: 5,59 м² + 64,79 м²
- Площадь кладовой: 4,51 м²
- Этаж: 2 из 4
- Энергетический класс: A2 (10 - 15 кВтч/м²)
Цена: 452 760,00 EUR

Вернуться к списку
Вывести в PDF