Квартира с четырьмя комнатами в центре.
Параметры
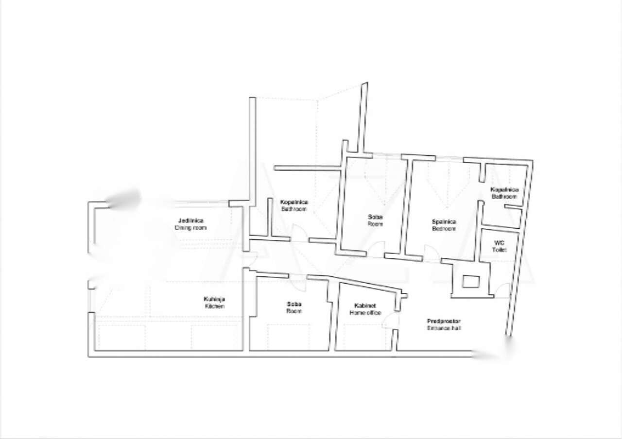
Предлагаем вам редчайшую возможность стать владельцем уникального мансардного помещения с собственным садом в самом сердце Любляны. Оно находится в одном из самых живописных позднебарочных зданий столицы. Всего в нескольких шагах располагаются всевозможные магазины, уютные кафе, изысканные рестораны, а также исторические и культурные памятники города. В 1991 году в здании провели укрепительные работы, а в мансарде установили металлическую опорную конструкцию крыши. Высота в коньке достигает 4,5 м, а коленная стена имеет 1,0 м в высоту, что создает максимальный комфорт и функциональность пространства.
Мансарда представляет собой независимое помещение, залитое естественным светом благодаря слуховым окнам. Существующее разрешение позволяет добавление дополнительных окон. В данный момент внутреннее пространство поделено на несколько комнат, однако новый владелец имеет полное право изменить планировку по своему усмотрению.
Попасть в мансарду можно через личный сад площадью 226 м², который дарит уединение в самом историческом центре города. Вход в сад осуществляется с тихой улочки, также имеется доступ для автомобилей. В настоящее время мансарда служит местом для хранения, но с изменением назначения она может стать уютным жилым пространством. Этот объект с волшебным садом, расположенный возле Люблянского града, готов стать вашим неповторимым домом или стать удачным вложением средств.
- Общая площадь: 153,80 м²
- Этаж: мансардный/4
- Сад: 226 м²
- Отопление: радиаторы, теплые полы, тепловой насос, кондиционер, централизованное водяное отопление
- Варианты отопления: на масле, газе, электричестве, с помощью кондиционера
- Энергетический сертификат не требуется
- Идеально подходит для пары или семьи
Цена: 700 000 EUR

Вернуться к списку
Вывести в PDF