Офисное здание в центральной части города
Параметры
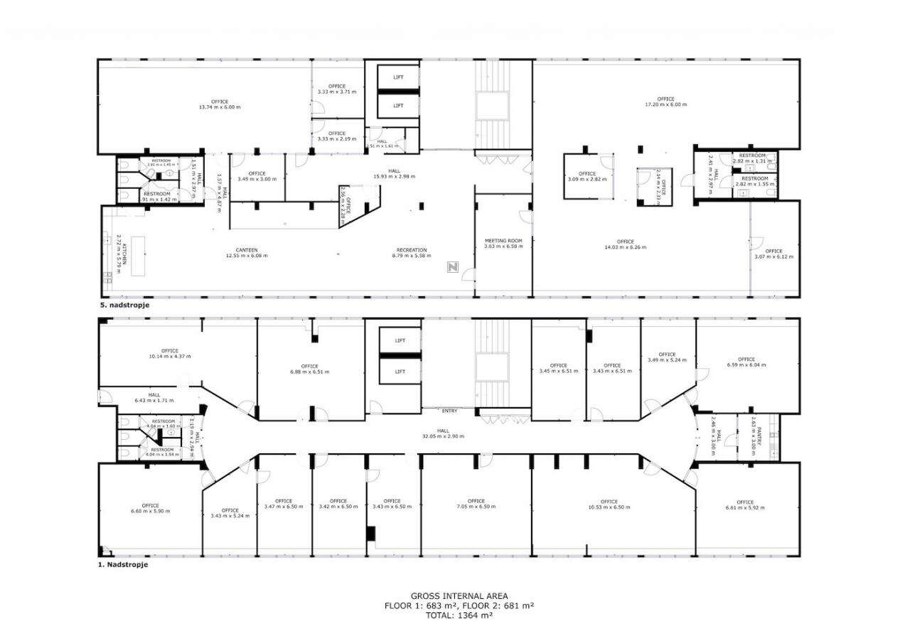
Представляем вашему вниманию превосходную возможность приобрести офисный блок площадью 608,4 м², расположенный в престижной части центра Любляны, на Малой улице. Офис занимает пятый этаж ухоженного бизнес-центра, который был построен в 1980 году и подвергся модернизации в 2020 году. Фасад здания обновлён в 2005 году, улучшая его эстетическое восприятие и функциональность, полностью отвечая современным стандартам деловых пространств.
Бизнес-центр оборудован лифтом и стойкой ресепшн, что подчеркивает высокий класс объекта. Помещения предлагают универсальные условия для любого офисного и делового использования. Системы отопления и охлаждения управляются централизованно через конвекторы. ❄️
С юридической точки зрения объект уже сдан в аренду до 1 сентября 2026 года, что обеспечивает будущему владельцу стабильный доход. Это также подразумевает отсутствие сложностей с оформлением и эксплуатацией.
Благодаря центральному расположению, здание предоставляет лёгкий доступ ко всей необходимой инфраструктуре: банки, рестораны, магазины и остановки общественного транспорта находятся на расстоянии вытянутой руки. Дополнительное удобство — наличие парковочных мест в близлежащих зонах. ️
- Площадь: 608,4 м²
- Этаж: 5-й
- Год постройки: 1980
- Год обновления фасада: 2005
- Год модернизации: 2020
- Системы отопления и охлаждения: центральные, через конвекторы
- Управление: ресепшн
- Лифт: имеется
- Срок аренды: до 1.9.2026
Инвестиционная привлекательность оценена в 8 из 10. Центральное положение и длительный срок аренды делают это предложение выгодным для профессионалов и инвесторов.
Цена: 1 700 000 EUR

Вернуться к списку
Вывести в PDF