Дом в городе Голаце
Параметры
Представляем вам исключительную возможность построить современный одноэтажный дом в живописной словенской деревушке Голац. Дом планируется на участке площадью 157 м², с грандиозной территорией в 9.420 м², из которых 216 м² предназначены именно для застройки. Все нужные документы, включая окончательное разрешение на строительство и оплаченные коммунальные расходы, в полном порядке, что позволяет незамедлительно начать реализацию проекта.
Дом будет построен на участке в 216 м², предусматривающий подъезд к соседнему участку и две парковочные зоны. Остальную часть земли занимают леса, сельскохозяйственные участки и пастбища, открывая множество возможностей для натурального хозяйства.
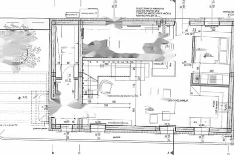
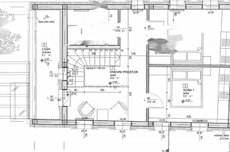
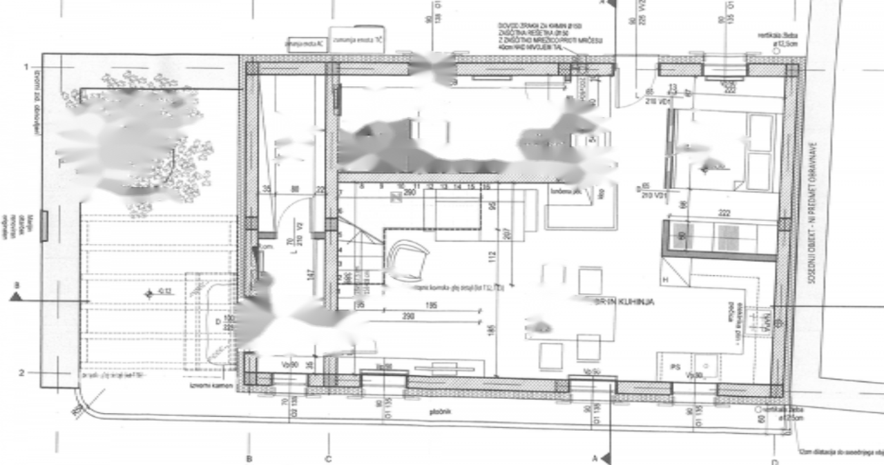
План этажей дома:
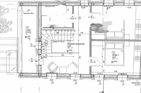
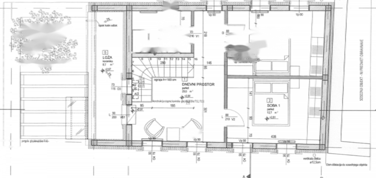
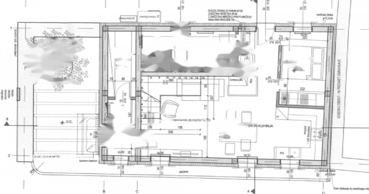
Первый этаж (61,1 м²): включает прихожую, кладовую, большую гостиную с кухней, спальню и ванную с хозяйственным уголком.
Мансардный этаж (60,9 м²): предусмотрены зона отдыха, две спальни и ванная комната с выходом на балкон.
Дом, расположенный в уединенной и тихой деревне Голац, утопает в природе и идеально создан для любителей пеших прогулок, велопоходов и спокойного отдыха. Близость к источнику воды и лесные тропы добавляют экологическую значимость и открывают возможности для активного отдыха. Рядом находится известная "Добрая дом здоровья", привлекающая гостей из множества регионов.
Ключевые характеристики:
- Общая площадь: 157 м²
- Этажность: первый этаж + мансардный этаж
- Спальни: 3
- Ванные комнаты: 2
- Земельная площадь: 9.420 м²
- Площадь застройки: 216 м²
- Кладовая: 4,4 м² (керамика)
- Спальня на первом этаже: 7,9 м² (керамика)
- Зона отдыха мансарды: 20,9 м² (паркет)
- Энергетическая сертификация не требуется (по статье 31 ZURE)

Вернуться к списку
Вывести в PDF