Центр Квартира 4 комнаты
Параметры
На продажу выставлена просторная четырехкомнатная квартира в новом жилом комплексе Девана Парк II на склоне Головац — одном из самых привлекательных районов Любляны. Этот комплекс сочетает в себе преимущества городской жизни с близостью к природе, обеспечивая отличные условия для комфортного проживания. Квартиры уже готовы для заселения.
Предлагаются различные типы квартир: от студий до просторных четырехкомнатных, с площадью от 34,80 м² до 141,75 м². Большинство апартаментов располагает внешними площадками с живописными видами на Любляну и Альпы. Спокойствие района вблизи городского центра позволяет наслаждаться всеми преимуществами столицы, сохраняя при этом покой и наслаждаясь природными пейзажами.
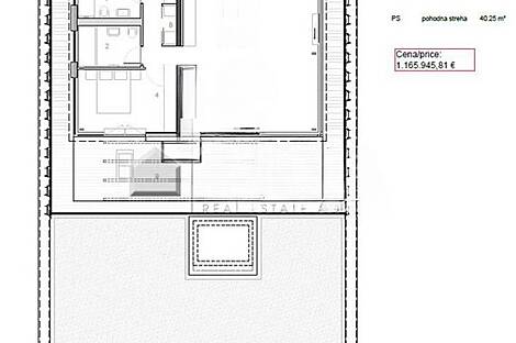
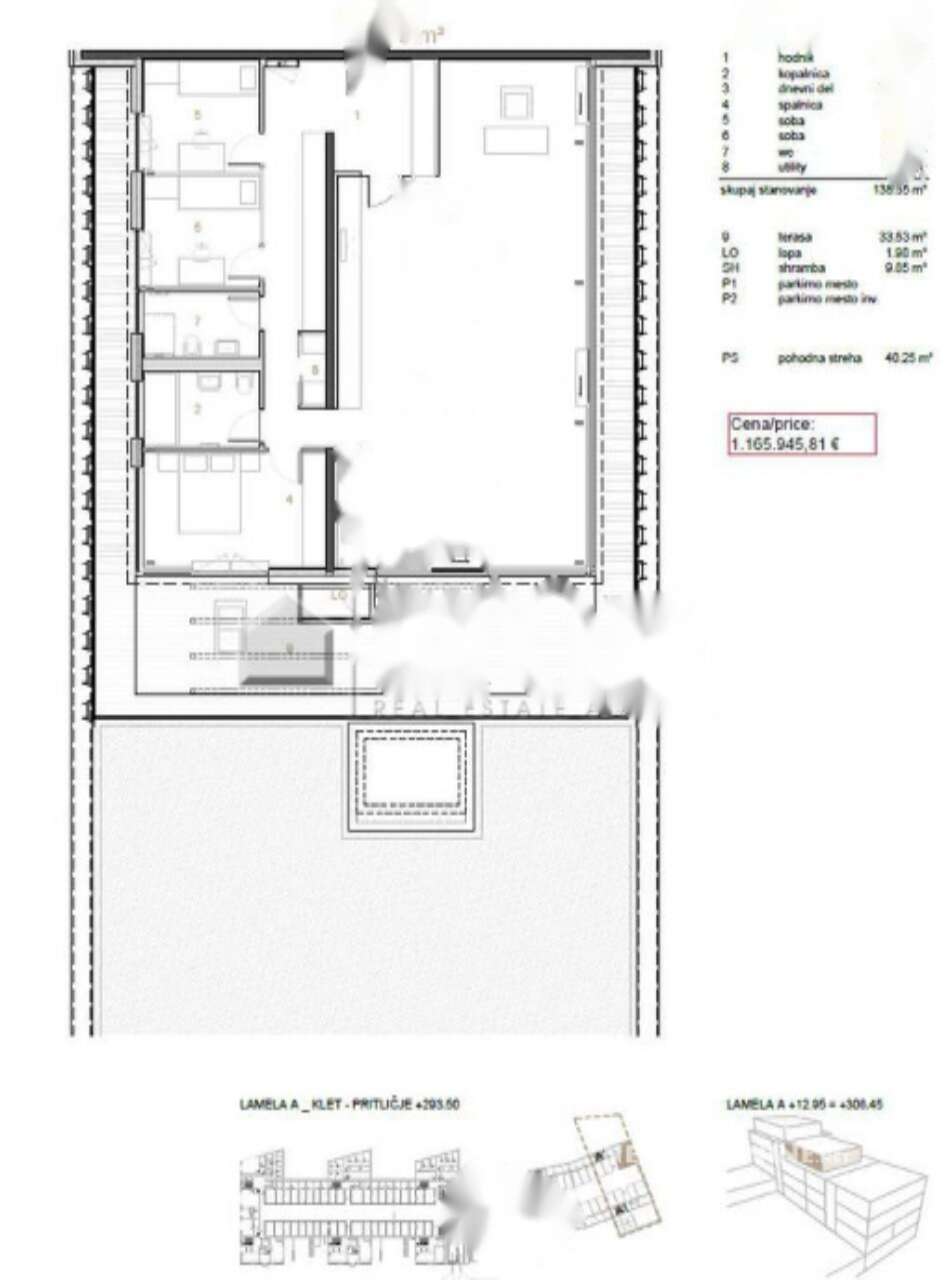
К вашему вниманию предлагается квартира с площадью 141,75 м², отличающаяся современным дизайном и продуманной планировкой. В нее входят три спальни и две ванные комнаты. Каждое помещение оформлено из высококачественных материалов и имеет просторные жилые зоны с большими стеклянными поверхностями и террасами. На выбор представлены два демонстрационных образца, чтобы вы могли лучше представить себе ваш будущий дом.
Комплекс оборудован парковочными местами и кладовыми, уже включенными в стоимость. Все квартиры соответствуют современным строительным стандартам и гарантируют максимальный комфорт. Вся техническая информация доступна на приложенном плане.
Цена: 1 165 946,00 EUR
- Общая площадь: 141,75 м²
- Количество спален: 3
- Число ванных комнат: 2
- Наличие парковки: Да

Вернуться к списку
Вывести в PDF