5-комнатная квартира в районе Подутик
Параметры
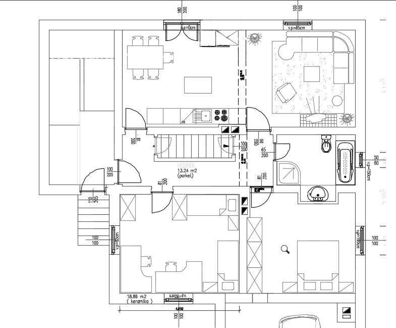
В продаже светлый и просторный дуплекс, расположенный в спокойном районе Подутика, который отличается близостью как к живописному лесу, так и к центру Любляны . Общая площадь составляет 164 м² и делится на два автономных жилых помещения, которые располагаются вокруг атриума площадью 100 м².
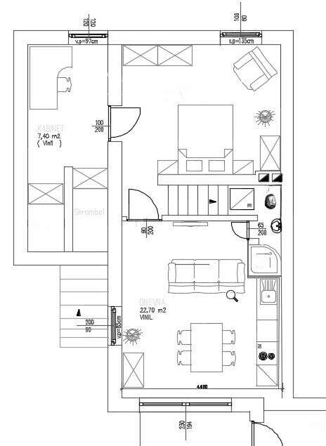
Первая квартира — это трехкомнатное жилье на просторном первом этаже, площадью 100 м², с доступом в атриум. Она включает в себя светлую гостиную с кухонной зоной, две просторные спальни, ванную комнату и коридор. Второе помещение — это расположенные на полуподвальном этаже два с кабинетом площадью 46 м², в составе которого гостиная с кухней, спальня, кабинет и ванная комната. Оба пространства соединены между собой внутренней лестницей.
После завершения полной реновации с использованием высококачественных материалов, объект оборудован современными системами отопления на биомассе и компрессором для нагрева воды. Энергоэффективность достигнута класса D. Также присутствуют радиаторы, теплый пол, крепкие двери с защитой и высокоскоростной оптоволоконный интернет.
Замечательное местоположение в старинной части Подутика позволяет наслаждаться уникальным сочетанием природы и доступа к городской жизни и инфраструктуре.
- Общая площадь: 164 м²
- Этаж: Высокий первый/двухэтажное здание
- Количество спален: 4
- Количество ванных комнат: 2
- Площадь участка: 100 м²
- Особенности: Атриум, парковочное место
- Отопление: Радиаторы, теплый пол, тепловой насос
- Энергоэффективность: Класс D (60 - 105 кВт⋅ч/м²⋅год)
Цена: 820 000 €

Вернуться к списку
Вывести в PDF