Четырехкомнатная квартира в Любляне, район Шишка
Параметры
Позвольте представить вам уникальный пентхаус в Центре Bellevue, который расположен всего в нескольких минутах от центра Любляны и парка Тиволи. Это современное здание 2023 года предлагает идеальную гармонию городской жизни и близости к природе с прекрасными видами на Триглав, Камниско-Савиньские Альпы, Караванке и гору Шмарна.
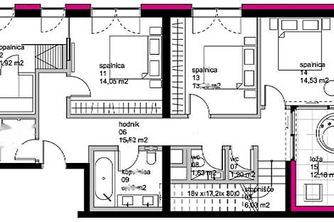
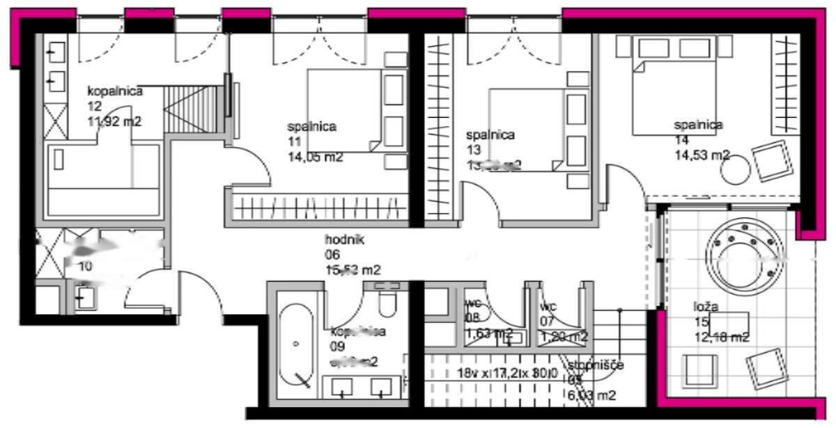
Этот дуплекс-пентхаус, раскинувшийся на 15-м и 16-м этажах восточной башни, образует синтез комфорта, пространства и захватывающего дух вида. На 15-м этаже находятся:
- главная спальня с собственной ванной комнатой, туалетом и сауной;
- две детские комнаты и еще одна ванная комната с туалетом;
- гардеробная, дополнительное хозяйственное помещение и кладовая.
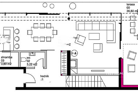
16-й этаж представляет собой общественный центр:
- элегантная жилая зона с потолками более 3 метров высотой;
- стеклянные стены, добавляющие свет и изящество;
- возможность обустроить камин для тёплых зимних вечеров;
- просторная терраса с подготовкой для установки джакузи.
Полезная площадь пентхауса составляет 161,43 м², терраса занимает 49,03 м², а кладовая в подвале — 12,70 м². В стоимость включены три места для автомобилей в гараже и четыре места для велосипедов.
Весь необходимый быт легко доступен пешком: здесь есть детский сад, школы, зоны отдыха, природа, автобусные остановки, городской центр и рестораны. На первом этаже для украшения жизни всех жильцов обустроена детская площадка. Питомцы приветствуются.
- Общая площадь: 223,16 м²
- Этаж: 16/16
- Количество спален: 3
- Количество ванных: 3
- Отдельный туалет
- Балкон
- Лоджия на 15-м этаже
- Система отопления: радиаторы и пол с подогревом, центральное отопление
- Противовзломные двери и домофон
- Энергоэффективность: А2 (10-15 кВт·ч/м² в год)
- Опция установки зарядной станции
Цена: 2 126 000,00 €

Вернуться к списку
Вывести в PDF