На улице Терраса в Томажичево стоит дом
Параметры
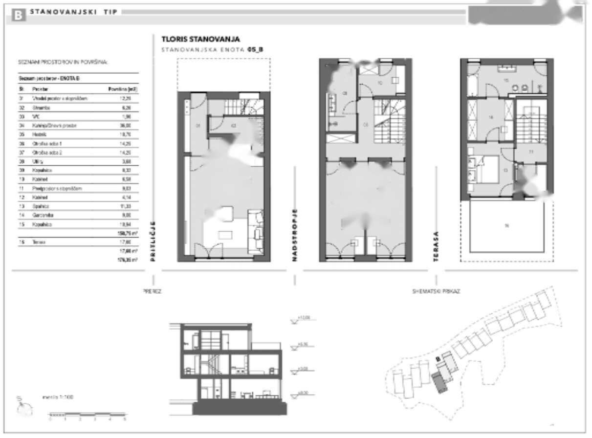
Предлагаем вашему вниманию уникальный объект в Любляне, Вич. Этот утонченный трехэтажный дом с террасой занимает площадь 153 м². Построенный на участке такой же площади, он предоставляет новоселам всё необходимое для уютной жизни.
Дом включает первый этаж и два верхних, где находятся четыре спальни и три ванные комнаты, а также техническое помещение на первом этаже. Комфорт дополняется отдельным туалетом, кладовой и сауной на верхнем этаже.
Архитектурный проект продуман до мелочей, обеспечивая высокий уровень комфорта и уединения. Отопление осуществляется как через полы, так и через радиаторы. Установлены кондиционеры и системы вентиляции, что делает дом безопасным и комфортным для тех, кто страдает от аллергии. Возможность оснащения солнечной электростанцией добавляет энергоэффективности.
На участке есть место для парковки двух машин, окруженное зелеными насаждениями, что создает приятные условия для отдыха на открытом воздухе. Въезд осуществляется через новую асфальтированную дорогу.
Дом расположен в спокойном районе, рядом с важнейшими инфраструктурными объектами: детским садом, школой, центром отдыха, аптекой и торговым центром. Это местоположение идеально для семей с детьми и пожилых людей благодаря близости природы и всем городским удобствам. Центр Любляны находится всего в 2 км, а до автобана "Любляна Вич" менее 1 км.
- Общая площадь: 153 м²
- Этажи: один первый и два верхних
- Спальни: 4
- Ванные комнаты: 3
- Площадь участка: 153 м²
- Балкон, терраса и сад
- Парковка: 2 автомобиля
- Энергетический класс: A1
- Виды отопления: полы, радиаторы, тепловой насос, газ, электроэнергия, дрова/уголь, кондиционер
- Дополнительно: антивандальные двери, видеодомофон, сигнализация, оптический интернет, зарядная станция
Стоимость данного предложения составляет 549 000 EUR. Этот дом идеально подходит для семей, выбирающих жизнь в тесной связи с природой и высоким уровнем городской инфраструктуры.

Вернуться к списку
Вывести в PDF