Четырехкомнатная квартира в Новой Чрной Вас
Параметры
Представляем вашему вниманию четырехкомнатный дуплекс в недавно возведенном здании района Черная Вас, расположенного в Любляне. Этот энергоэффективный новострой содержит две отдельные квартиры и общий участок, площадью от 209 до 229 м².
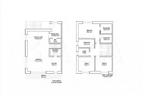
Квартира площадью 136,5 м² раскинулась на два уровня, предоставляя 125,5 м² жилого пространства с удобной планировкой. На первом этаже расположена просторная гостиная, объединенная с кухней и столовой, хозяйственные помещения и балкон размером 8,94 м². На втором этаже вас ждут две детские спальни, главная спальня с гардеробной и приватной ванной комнатой, а также дополнительный санузел.
Дом оборудован двумя асфальтированными парковочными местами и зелеными насаждениями. Обогрев и подача горячей воды осуществляется с помощью теплового насоса, что способствует энергосбережению.
Превосходное расположение в районе Любляна-Рудник — Черная Вас предоставляет возможность легкого доступа к городскому транспорту, ресторанам и живописным прогулочным зонам.
- Жилая площадь: 136,5 м²
- Этажей: 2
- Спальни: 3
- Ванные комнаты: 2
- Отдельный санузел: Да
- Общая площадь участка: 209 м²
- Балкон: 8,94 м²
- Места для парковки: 2
- Тип отопления: Тепловой насос
- Материалы постройки: ПВХ окна с тройным остеклением
Стоимость: 530 000 евро

Вернуться к списку
Вывести в PDF